

Christian Schulz Immobilien
Herr Christian Schulz
+49 ···
Nr. anzeigenPreise & Kosten
Provision für Käufer
2,38% inkl. MwSt.
Die Maklercourtage beträgt für Käufer und Verkäufer jeweils 2,38?% des Kaufpreises inkl. gesetzlicher MwSt. Sie ist mit notariellem Vertragsabschluss verdient und fällig.
Lage
Schmargendorf, ein idyllischer Ortsteil im Bezirk Charlottenburg-Wilmersdorf, vereint gemütlichen Kleinstadtcharakter mit urbanem Flair. Kein Wunder, dass dieser charmante Ort so beliebt ist! Hier trifft eine harmonische Mischung aus eleganten Altbauvillen, schlichten Mehrfamilienhäusern und den unaufgeregten Baustilen der...
Die Wohnung
Wohnungslage
Erdgeschoss
Bezug
ab sofort
Wohnanlage
Energie & Heizung
Warum sehe ich diese Anzeige? – Du siehst diese Anzeige basierend auf Ihrer Navigation auf unserer Website und den Suchkriterien, die du verwendet hast.
Energieausweistyp
Verbrauchsausweis
Gebäudetyp
Wohngebäude
Wesentliche Energieträger
Fernwärme
Gültigkeit
02.09.2019 bis 01.09.2029
Effizienzklasse
E
Endenergieverbrauch
139,00 kWh/(m²·a)
Weitere Energiedaten
Energieträger
Fernwärme
Details
Objektbeschreibung
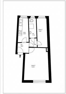
Diese helle Eigentumswohnung bietet 2 Zimmer auf ca. 41,55m² und befindet sich im Hochpaterre einer gepflegten Wohnanlage aus dem Jahr 1929. Durch die etwas zurückgesetzte Lage vereint sie Ruhe mit modernem Wohnkomfort. Die Wohnung befindet sich in einem renovierungsbedürftigen Zustand.
Das großzügige Wohnzimmer erstreckt...
Ausstattung
Renovierungsbedürftige Etagenwohnung im Hochpaterre
Gepflegte Wohnanlage aus 1929
2 Zimmer mit ca. 41,55 m²
Großer und heller Wohnbereich auf knapp 20 m²
1 Schlafzimmer
Geräumiger Flur- und Eingangsbereich
Kompakte Küche mit Platz für kleine Sitzecke
Wannenbad mit Fenster
Dokumente
Anbieter der Immobilie
Christian Schulz Immobilien
Warägerweg 3, 13595 Berlin

Online-ID: 2plrj57
Referenznummer: HZD-WE138
Finde Angebote wie dieses
Hier geht es zu unserem Impressum, den Allgemeinen Geschäftsbedingungen, den Hinweisen zum Datenschutz und nutzungsbasierter Online-Werbung.