

Gründer Immobilien
Herr Ralf Gründer
049 ···
Nr. anzeigenPreise & Kosten
Provision für Käufer
provisionsfrei
Lage
Leben in Lathen - Wohnqualität im nördlichen Emsland
Lathen zählt zu den gefragten Wohnorten im nördlichen Emsland und überzeugt durch eine ausgewogene Kombination aus naturnahem Umfeld, gewachsener Infrastruktur und hoher Lebensqualität. Die Gemeinde bietet ein angenehmes, familienfreundliches Umfeld mit kurzen Wegen...
Das Haus
Kategorie
Bungalow
Baujahr
2022
Bezug
nach Vereinbarung
Energie & Heizung
Warum sehe ich diese Anzeige? – Du siehst diese Anzeige basierend auf Ihrer Navigation auf unserer Website und den Suchkriterien, die du verwendet hast.
Energieausweistyp
Bedarfsausweis
Gebäudetyp
Wohngebäude
Wesentliche Energieträger
Luftwärmepumpe
Gültigkeit
15.01.2025 bis 14.01.2035
Endenergiebedarf
49,10 kWh/(m²·a)
Weitere Energiedaten
Heizungsart
Luft-/Wasser-Wärmepumpe, offener Kamin
Details
Objektbeschreibung
Exklusiver Bungalow in Lathen - Baujahr 2022
In bevorzugter Wohnlage von Lathen präsentiert sich dieser im Jahr 2022 errichtete Bungalow als architektonisch durchdachtes Zuhause mit rund 190 m² Wohnfläche auf einem ca. 625 m² großen Grundstück. Das Objekt überzeugt durch einen nahezu neuwertigen Gesamtzustand...
Ausstattung
Der großzügige Wohn- und Essbereich bildet das Herzstück des Hauses. Hier sorgt ein formschöner Kaminofen für behagliche Wärme und eine besondere Wohnatmosphäre. Die offene Raumgestaltung wird durch eine elegante Schiebetür zwischen Wohnzimmer und Küche ergänzt - ideal, um Offenheit und Rückzug flexibel zu...
Preisinformation
2 Garagenstellplätze
Weitere Informationen
Sonstiges
Wohnflächenaufteilung:
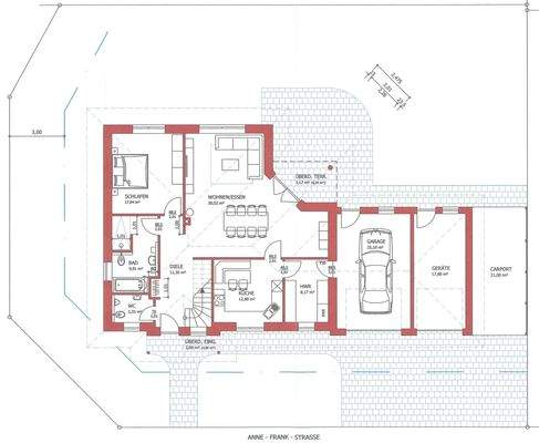
Erdgeschoss:
Diele ca. 11,30 m²
Wohnzimmer ca. 39,52 m²
Küche ca. 12,88 m²
Schlafzimmer ca. 17,04 m²
Badezimmer ca. 9,81 m²
Gäste-WC ca. 3,35 m²
Hauswirtschaftsraum ca. 8,17 m²
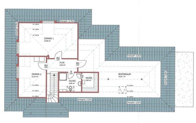
Dachgeschoss:
Flur ca. 6,62 m²
Schlafzimmer ca. 24,98 m²
Schlafzimmer...
Anbieter der Immobilie
Gründer Immobilien
Haupstraße 97, 26892 Dörpen

Online-ID: 2plp854
Referenznummer: 8510
Finde Angebote wie dieses
Hier geht es zu unserem Impressum, den Allgemeinen Geschäftsbedingungen, den Hinweisen zum Datenschutz und nutzungsbasierter Online-Werbung.