

Drehpunkt Immobilien GmbH
Herr/Frau Mustafa Korkmaz
072 ···
Nr. anzeigenPreise & Kosten
Provision für Käufer
3,57 inkl. MwSt.
Lage
Die Immobilie befindet sich in Mannheim (PLZ 68309) in einer gewachsenen und familienfreundlichen Wohnlage mit guter Infrastruktur.
Einkaufsmöglichkeiten, Schulen sowie Einrichtungen des täglichen Bedarfs sind fußläufig erreichbar. Auch Freizeitangebote und Grünflächen befinden sich in unmittelbarer Nähe und bieten...
Das Haus
Kategorie
Reihenmittelhaus
Baujahr
2010
Bezug
sofort
Energie & Heizung
Warum sehe ich diese Anzeige? – Du siehst diese Anzeige basierend auf Ihrer Navigation auf unserer Website und den Suchkriterien, die du verwendet hast.
Weitere Energiedaten
Energieträger
Fernwärme
Heizungsart
Zentralheizung
Details
Objektbeschreibung
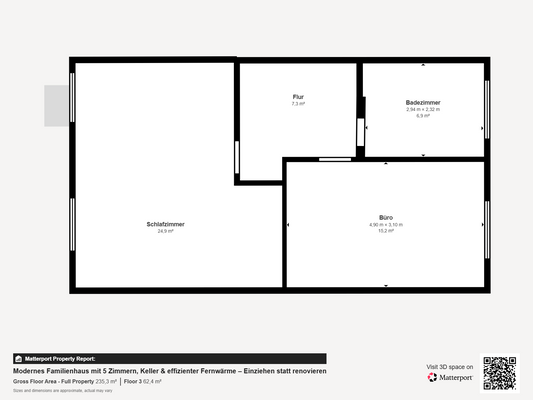
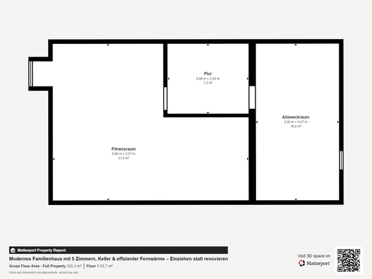
Dieses gepflegte Reihenhaus aus dem Jahr 2010 überzeugt durch eine durchdachte Raumaufteilung, einen soliden baulichen Zustand sowie eine zeitgemäße, gehobene Ausstattung - ideal für Familien, die ein sofort bezugsfähiges Zuhause suchen.
Auf ca. 138 m² Wohnfläche verteilen sich insgesamt fünf gut geschnittene Zimmer...
Ausstattung
Ein besonderes Highlight:
Die Immobilie kann bereits jetzt virtuell besichtigt werden.
Erleben Sie das Haus bequem von zu Hause aus und verschaffen Sie sich einen realistischen Eindruck von Raumgefühl, Aufteilung und Ausstattung - noch vor dem ersten Termin vor Ort.
-Reihenhaus (beidseitig...
Preisinformation
1 Garagenstellplatz
Weitere Informationen
Sonstiges
Gerne stellen wir Ihnen diese Immobilie im Rahmen einer persönlichen Besichtigung vor und zeigen Ihnen vor Ort alle Details.
3,57 % inkl. MwSt. für Käufer gemäß gesetzlicher Regelung.
Energiepass
Energieausweis wird bei Besichtigung vorgelegt.
Stichworte
Garage vorhanden, Anzahl der...
Anbieter der Immobilie
Drehpunkt Immobilien GmbH
Im Kehlhorst 1, 76726 Germersheim

Online-ID: 2plgc56
Referenznummer: DP-8283
Finde Angebote wie dieses
Hier geht es zu unserem Impressum, den Allgemeinen Geschäftsbedingungen, den Hinweisen zum Datenschutz und nutzungsbasierter Online-Werbung.