
Immobilien Friedrichsen GmbH & Co. KG
004 ···
Nr. anzeigenPreise & Kosten
Provision für Käufer
3,57 % inkl. MwSt. inkl. MwSt.
Lage
Ladelund, das Dorf das (fast) alles hat, ist eine Gemeinde des Kreises Nordfriesland in Schleswig-Holstein.
Ganz oben im Norden liegt es mitten zwischen den Meeren, nur vier Kilometer südlich der Grenze zu Dänemark entfernt mit knapp 1.370 Einwohnern.
Die Aufgeschlossenheit der Einwohnerschaft, die reizvolle...
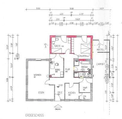
Das Haus
Kategorie
Bungalow
Baujahr
1997
Bezug
nach Vereinbarung
Energie & Heizung
Warum sehe ich diese Anzeige? – Du siehst diese Anzeige basierend auf Ihrer Navigation auf unserer Website und den Suchkriterien, die du verwendet hast.
Energieausweistyp
Verbrauchsausweis
Gebäudetyp
Wohngebäude
Baujahr laut Energieausweis
1997
Wesentliche Energieträger
GAS
Gültigkeit
bis 04.04.2036
Effizienzklasse
E
Weitere Energiedaten
Haustyp
Massivhaus
Energieträger
Gas
Heizungsart
offener Kamin, Zentralheizung
Details
Objektbeschreibung
Bei diesem Objekt heißt es Einziehen und Wohlfühlen.
Dieser sehr gepflegte Bungalow wurde ca. 1997 erbaut und ca. 2002 durch einen Anbau erweitert.
Durch die gelungene Raumaufteilung eignet sich dieses Wohnhaus sowohl für Familien mit Kindern, aber auch für Paare oder Senioren, die gerne zur ebenen Erde wohnen...
Ausstattung
Erfolgte Modernisierungen:
- Einbau eines Grundofens (ca. 2007)
- Installation einer Solaranlage zur Brauchwassererwärmung
- Erneuerung der Küche (ca. 2012)
- Erneuerung der Heizungsanlage (ca. 2013)
- Verlegen eines Parkettfußbodens im Wohnzimmer (ca. 2020)
- Installation einer PV-Anlage mit Wallbox und...
Weitere Informationen
Sonstiges
Wir helfen Ihnen gerne bei der Finanzierung der Immobilie!
Unser Service / Ihre Vorteile:
-Erstellung eines individuellen Finanzierungskonzeptes
-Finanzierungsvorprüfung "Was kann ich mir leisten?"
-Einbindung und Prüfung von Fördermöglichkeiten
- Auswahl einer passenden und günstigen...
Anbieter der Immobilie

Immobilien Friedrichsen GmbH & Co. KG
Online-ID: 2plf758
Referenznummer: 9500
Finde Angebote wie dieses
Hier geht es zu unserem Impressum, den Allgemeinen Geschäftsbedingungen, den Hinweisen zum Datenschutz und nutzungsbasierter Online-Werbung.