
Immobilienservice Großer
Herr Tamás Pásztor
+49 ···
Nr. anzeigenPreise & Kosten
Kaution
1.770,00
Warum sehe ich diese Anzeige? – Du siehst diese Anzeige basierend auf Ihrer Navigation auf unserer Website und den Suchkriterien, die du verwendet hast.
Lage
Die angebotene Wohnung befindet sich in zentraler und äußerst attraktiver Lage von Mittweida, direkt am Marktplatz (Markt 20-23). Das historische Stadtzentrum besticht durch seinen charmanten Mix aus traditioneller Architektur und moderner Infrastruktur.
Alle Einrichtungen des täglichen Bedarfs wie...
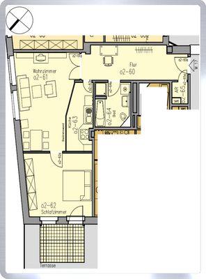
Die Wohnung
Wohnungslage
2. Geschoss
Bezug
sofort
Wohnanlage
Energie & Heizung
Warum sehe ich diese Anzeige? – Du siehst diese Anzeige basierend auf Ihrer Navigation auf unserer Website und den Suchkriterien, die du verwendet hast.
Energieausweistyp
Verbrauchsausweis
Gebäudetyp
Wohngebäude
Baujahr laut Energieausweis
1997
Gültigkeit
01.12.2017 bis 30.11.2027
Effizienzklasse
B
Endenergieverbrauch
73,00 kWh/(m²·a) - Warmwasser enthalten
Weitere Energiedaten
Energieträger
Gas
Heizungsart
Zentralheizung
Details
Objektbeschreibung
Das Objekt am Marktplatz ist einzigartig. Sie wohnen direkt am Marktplatz und können dennoch die Ruhe genießen! Die Wohnung befindet sich auf dem neusten Stand und ist komplett saniert, renoviert und modernisiert.
Das Gebäude selber, das Ferdinand-Pester-Haus wird fortlaufend saniert und instandgehalten.
Wartung und...
Ausstattung
Die Ausstattung ist sehr umfangreich. Hier nur ein Auszug:
- Abstellraum , Beleuchtung installiert , belüftet
- Abtrennung zur Küche (Glaswände)
- Bad: Beleuchtung komplett
- Bad: Handtuchheizung
- Bad: Medizinschrank eingebaut
- Bad: Wanne, separate Dusche, WC - voll ausgestattet
- Belüftung (mechan...
Preisinformation
1 Stellplatz, Miete: 41,50 EUR
1 Tiefgaragenstellplatz, Miete: 59,50 EUR
Weitere Informationen
Sonstiges
Alle Angaben basieren ausschließlich auf Informationen unseres Auftraggebers ohne Gewähr für deren Vollständigkeit, Richtigkeit und Aktualität. Das Angebot ist freibleibend und unverbindlich. Irrtum und Zwischenverkauf bleiben vorbehalten.
Rechtliches zum Energieausweis:
Wir haben bei allen Eigentümern...
Anbieter der Immobilie
Immobilienservice Großer
Neustadt 25, 09648 Mittweida
Online-ID: 2plec55
Referenznummer: V-2-MW-127
Finde Angebote wie dieses
Hier geht es zu unserem Impressum, den Allgemeinen Geschäftsbedingungen, den Hinweisen zum Datenschutz und nutzungsbasierter Online-Werbung.