

Römhildt GmbH
Frau Birgit Römhildt
061 ···
Nr. anzeigenPreise & Kosten
Provision für Käufer
3,57%
Lage
Ortsbeschreibung:
Dieses attraktive Reihenhaus befindet sich in einem der gefragtesten Wohnlagen von Mainz - im beliebten Stadtteil Bretzenheim. Eingebettet in das gepflegte Neubaugebiet "Zwischen Essenheimer Straße und Marienborner Straße", das Ende der 1980er Jahre entwickelt wurde, vereint die Lage ruhiges Wohnen...
Das Haus
Kategorie
Reihenmittelhaus
Baujahr
1990
Energie & Heizung
Warum sehe ich diese Anzeige? – Du siehst diese Anzeige basierend auf Ihrer Navigation auf unserer Website und den Suchkriterien, die du verwendet hast.
Weitere Energiedaten
Energieträger
Elektro, Gas
Heizungsart
Zentralheizung
Details
Objektbeschreibung
Dieses Reihenmittelhaus aus dem Baujahr 1990 stellt eine attraktive Investitionsmöglichkeit in einem gewachsenen und stabil nachgefragten Wohnumfeld dar. Die Lage innerhalb einer gepflegten Reihenhausanlage mit verkehrsberuhigten Fußwegen spricht eine breite Mieterzielgruppe an - von Paaren bis hin zu kleinen Familien - und...
Ausstattung
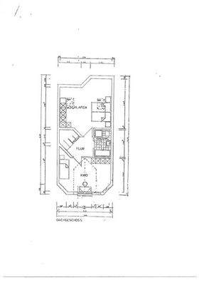
Die Grundrissgestaltung dieses Hauses hebt sich wohltuend vom Standard ab: Vom Eingangsbereich bis zur Terrasse entfaltet sich eine spannende, asymmetrische Raumstruktur, die durch gezielte Abwinklungen klassischer Wandverläufe entsteht. Auf kompakter Fläche wurde so ein Wohnkonzept geschaffen, das Individualität und moderne...
Preisinformation
1 Stellplatz
Weitere Informationen
Stichworte
Nutzfläche: 50,00 m², Anzahl der Schlafzimmer: 2, Anzahl der Badezimmer: 1, Anzahl der separaten WCs: 1, Distanz zum Kindergarten: 1.00, Distanz zur Grundschule: 3.00, Distanz zur Realschule: 3.00, Distanz zum Gymnasium: 4.00, Distanz zur Autobahn: 2.00, Distanz vom Zentrum: 4.00
Anbieter der Immobilie
Römhildt GmbH
Südring 98, 55128 Mainz

Online-ID: 2plbe55
Referenznummer: XC183
Finde Angebote wie dieses
Hier geht es zu unserem Impressum, den Allgemeinen Geschäftsbedingungen, den Hinweisen zum Datenschutz und nutzungsbasierter Online-Werbung.