
GEWAG Remscheid
Sarah Leischner
Kontaktiere den Anbieter schriftlich, es ist keine Telefonnummer hinterlegt.
Preise & Kosten
Warum sehe ich diese Anzeige? – Du siehst diese Anzeige basierend auf Ihrer Navigation auf unserer Website und den Suchkriterien, die du verwendet hast.
Lage
Die Wohnung befindet sich in einer ruhigen und schönen Lage im Stadtteil Hasten. Großzügige Grünflächen zwischen den Häusern schaffen eine angenehme Atmosphäre und sorgen für ein gutes Wohnklima.
Diverse Einkaufsmöglichkeiten sind fußläufig erreichbar. Ebenfalls ist das Objekt an den öffentlichen Nahverkehr angebunden...
Die Wohnung
Wohnungslage
4. Geschoss
Bezug
01.06.2026
Wohnanlage
Energie & Heizung
Warum sehe ich diese Anzeige? – Du siehst diese Anzeige basierend auf Ihrer Navigation auf unserer Website und den Suchkriterien, die du verwendet hast.
Energieausweistyp
Verbrauchsausweis
Gebäudetyp
Wohngebäude
Baujahr laut Energieausweis
1969
Wesentliche Energieträger
Gas
Effizienzklasse
E
Endenergieverbrauch
144,00 kWh/(m²·a)
Weitere Energiedaten
Energieträger
Gas
Heizungsart
Zentralheizung
Details
Objektbeschreibung
Objektreferenz: 126.2.27
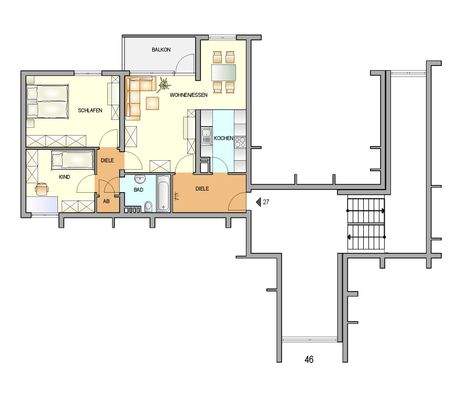
Diese geräumige 3-Zimmer Wohnung mit durchdachtem Grundriss, befindet sich im 4. Obergeschoss eines gepflegten Mehrfamilienhauses am Hasten in Remscheid.
Beim Betreten der Wohnung gelangen Sie in den Flur. Von dort erreichen Sie die Küche mit ausreichend Platz für eine schöne Sitzecke und...
Ausstattung
- 2 Schlafzimmer
- Abstellraum
- Balkon
- Gas-Etagenheizung
- Rauchmelder
- Keller
Weitere Informationen
Sonstiges
Eine Anmietung ist zum 01.06.2026 möglich. Fotos folgen zu einem späteren Zeitpunkt.
Sollte Interesse an einer Besichtigung bestehen, kontaktieren Sie uns. Wir setzen uns dann kurzfristig mit Ihnen in Verbindung.
Wir freuen uns auf Ihre Kontaktaufnahme!
HINWEIS ZUR BEWERBUNG:
Um Ihnen den...
Dokumente
Anbieter der Immobilie

GEWAG Remscheid
Sarah Leischner
Dein Ansprechpartner
Kontaktiere den Anbieter schriftlich, es ist keine Telefonnummer hinterlegt.
Online-ID: 2pl6e57
Referenznummer: 126.2.27-hToajI
Finde Angebote wie dieses
Hier geht es zu unserem Impressum, den Allgemeinen Geschäftsbedingungen, den Hinweisen zum Datenschutz und nutzungsbasierter Online-Werbung.