
ohne-makler.net - Immobilien selbst vermarkten
Privat von Familie Kaiser
Kontaktiere den Anbieter schriftlich, es ist keine Telefonnummer hinterlegt.
Preise & Kosten
Provision für Käufer
provisionsfrei
Lage
Das Einfamilienhaus befindet sich in der idyllischen Gemeinde Fahrdorf, direkt am Ufer der Schlei und nur wenige Minuten von Schleswig entfernt. Fahrdorf zeichnet sich durch eine hohe Lebensqualität aus und bietet eine perfekte Kombination aus ruhiger Wohnlage und guter Infrastruktur.
Die Umgebung lädt zu Spaziergängen...
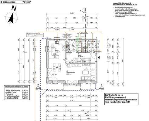
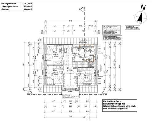
Das Haus
Kategorie
Einfamilienhaus
Baujahr
2017
Bezug
sofort
Energie & Heizung
Warum sehe ich diese Anzeige? – Du siehst diese Anzeige basierend auf Ihrer Navigation auf unserer Website und den Suchkriterien, die du verwendet hast.
Energieausweistyp
Bedarfsausweis
Gebäudetyp
Wohngebäude
Effizienzklasse
A+
Endenergiebedarf
16,00 kWh/(m²·a)
Weitere Energiedaten
Energieträger
Erdwärme
Heizungsart
Fußbodenheizung
Details
Objektbeschreibung
Dieses moderne Einfamilienhaus befindet sich in einem familienfreundlichen Neubaugebiet in Fahrdorf, umgeben von vielen jungen Familien mit Kindern. Die Lage ist ideal für Familien - Kindergarten und Grundschule sind bequem fußläufig erreichbar.
Das Haus überzeugt mit einer durchdachten Raumaufteilung und...
Ausstattung
Terrasse, Garten, Vollbad, Duschbad, Sauna, Einbauküche, Gäste-WC, Fliesen
Bemerkungen:
Das Einfamilienhaus überzeugt mit einer hochwertigen und durchdachten Ausstattung. Die moderne Einbauküche mit Markengeräten bildet den funktionalen Mittelpunkt des Hauses.
Im Erdgeschoss sorgt eine durchgängige...
Preisinformation
1 Carportplatz
2 Stellplätze
Weitere Informationen
Sonstiges
Heizungsart: Fußbodenheizung
Energieträger: Erdwärme
Makleranfragen nicht erwünscht. Nach § 7 UWG sind unaufgeforderte Kontaktaufnahmen durch Makler ohne ausdrückliche Einwilligung des Empfängers verboten!
ohne-makler (OM) ist weder Anbieter noch Vermittler der Immobilie. OM betreibt eine...
Anbieter der Immobilie
ohne-makler.net - Immobilien selbst vermarkten
Humboldtstr. 25 A, 21509 Glinde
Privat von Familie Kaiser
Dein Ansprechpartner
Kontaktiere den Anbieter schriftlich, es ist keine Telefonnummer hinterlegt.
Online-ID: 2pl3s57
Referenznummer: 339219
Finde Angebote wie dieses
Hier geht es zu unserem Impressum, den Allgemeinen Geschäftsbedingungen, den Hinweisen zum Datenschutz und nutzungsbasierter Online-Werbung.