
Crozilla.com
CENTURY 21 Lider Real Estate
+38 ···
Nr. anzeigenPreise & Kosten
Provision für Käufer
Bitte beachte, das Angebot kann bei Vertragsabschluss die Zahlung einer Provision beinhalten. Weitere Informationen erhältst Du vom Anbieter.
Die Wohnung
Wohnungslage
1. Geschoss
Wohnanlage
Details
Objektbeschreibung
Century 21 posreduje u prodaji stanova u Primostenu.
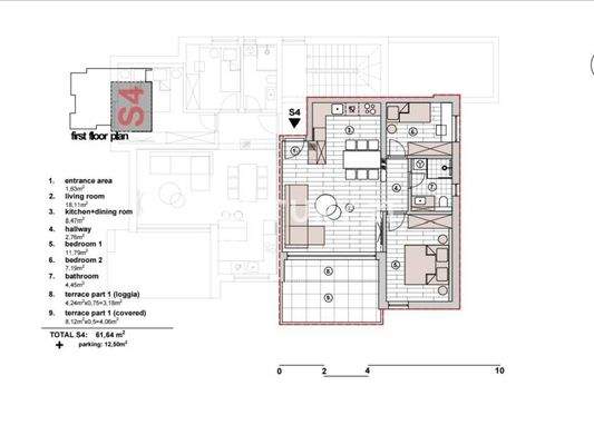
Na prodaju je moderan 2,5-sobni stan povrsine 66,64 m2, smjesten na prvom katu novogradnje s ukupno cetiri kata u Primostenu. Ovaj stan se istice svojom suvremenom arhitekturom i privlacnom lokacijom u blizini prirode.
Zavrsetak radova je predviden krajem...
Weitere Informationen
Stichworte
Anzahl der Schlafzimmer: 2, Anzahl der Badezimmer: 1, 1 Etagen
Anbieter der Immobilie
Crozilla.com
Nova cesta 60, 10000 ZAGREB
Online-ID: 2pl2458
Referenznummer: 18509874_5
Finde Angebote wie dieses
Hier geht es zu unserem Impressum, den Allgemeinen Geschäftsbedingungen, den Hinweisen zum Datenschutz und nutzungsbasierter Online-Werbung.