

Wohntraumfinder GmbH
Herr Gunnar Andrä
017 ···
Nr. anzeigenPreise & Kosten
Kaution
3.900,00
Warum sehe ich diese Anzeige? – Du siehst diese Anzeige basierend auf Ihrer Navigation auf unserer Website und den Suchkriterien, die du verwendet hast.
Lage
Das Objekt liegt unweit von Wäldern und Grünflächen, die zu Spaziergängen und Wanderungen einladen. Besonders die Burg Rabenstein, der Tierpark mit Restaurant "Pelzmühle" und die "Felsendome Rabenstein" sind attraktive, nahe gelegene Ausflugsziele. Im Sommer ist der Stausee Oberrabenstein ein Magnet für alle...
Das Haus
Kategorie
Doppelhaushälfte
Baujahr
2021
Bezug
01.08.2026
Energie & Heizung
Warum sehe ich diese Anzeige? – Du siehst diese Anzeige basierend auf Ihrer Navigation auf unserer Website und den Suchkriterien, die du verwendet hast.
Energieausweistyp
Bedarfsausweis
Gebäudetyp
Wohngebäude
Baujahr laut Energieausweis
2021
Wesentliche Energieträger
LUFTWP
Gültigkeit
bis 14.12.2032
Effizienzklasse
A+
Endenergiebedarf
18,00 kWh/(m²·a)
Weitere Energiedaten
Heizungsart
Fußbodenheizung, Luft-/Wasser-Wärmepumpe, Zentralheizung
Details
Objektbeschreibung
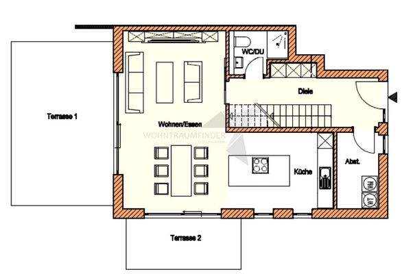
Die 2022/23 neu gebaute Doppelhaushälfte befindet sich im beliebten Chemnitzer Stadtteil Rabenstein.
Das modern gestaltete Niedrigenergiehaus mit KfW55 Standard und Luftwärmepumpe verfügt über 2 Außenstellplätze mit einer Wallbox für Ihr Elektroauto.
Zwei großzügige Terrassen mit Gartenanteil sowie Fußbodenheizung, eine...
Ausstattung
Die hier angebotene Doppelhaushälfte mit 2 Stellplätzen und Hausgarten freut sich ab August 2026 auf Sie als neue Mieter, da sie aktuell noch vermietet ist.
!! Die moderne Einbauküche mit hochwertigen Einbaugeräten, sowie die beiden Stellplätze und die Nutzung des Hausgartens sind bereits in der Miete enthalten...
Preisinformation
2 Stellplätze
Weitere Informationen
Sonstiges
360° Rundgang (ähnlich) - https://tour.feelestate.com/view/is24/id/VVPBG/p/fa9238258435508a607e70c5f8b25dbffc6e3eac
Stichworte
Gesamtfläche: 142,00 m², Anzahl der Schlafzimmer: 3, Anzahl der Badezimmer: 2, Anzahl der separaten WCs: 1, Anzahl Terrassen: 2, 2 Etagen, Wohnungsnr.: 02, Distanz zum...
Dokumente
Anbieter der Immobilie
Wohntraumfinder GmbH
Limbacher Str. 345, 09117 Chemnitz

Online-ID: 2pkzb57
Referenznummer: R_O38_02
Finde Angebote wie dieses
Hier geht es zu unserem Impressum, den Allgemeinen Geschäftsbedingungen, den Hinweisen zum Datenschutz und nutzungsbasierter Online-Werbung.