

DAHLER Freiburg | Prüß & Company GmbH
Herr Henrik Prüß
+49 ···
Nr. anzeigenPreise & Kosten
Provision für Käufer
3,57% Käuferprovision inkl. MwSt. bezogen auf den Kaufpreis inkl. MwSt.
Lage
Die Wohnung befindet sich im Freiburger Stadtteil Freiburg-Haslach im Süden von Freiburg im Breisgau. Der Stadtteil zählt zu den gewachsenen und beliebten Wohnlagen der Stadt und verbindet eine gute Infrastruktur mit kurzen Wegen in die Innenstadt und in die Natur.
In der näheren Umgebung befinden sich zahlreiche...
Die Wohnung
Wohnungslage
Erdgeschoss
Bezug
Vermietet
Derzeitige Nutzung
vermietet
Wohnanlage
Energie & Heizung
Warum sehe ich diese Anzeige? – Du siehst diese Anzeige basierend auf Ihrer Navigation auf unserer Website und den Suchkriterien, die du verwendet hast.
Energieausweistyp
Bedarfsausweis
Gebäudetyp
Wohngebäude
Baujahr laut Energieausweis
2016
Wesentliche Energieträger
PELLET
Gültigkeit
bis 12.07.2026
Effizienzklasse
B
Endenergiebedarf
64,00 kWh/(m²·a)
Weitere Energiedaten
Energieträger
Pellets
Heizungsart
Fußbodenheizung
Details
Objektbeschreibung
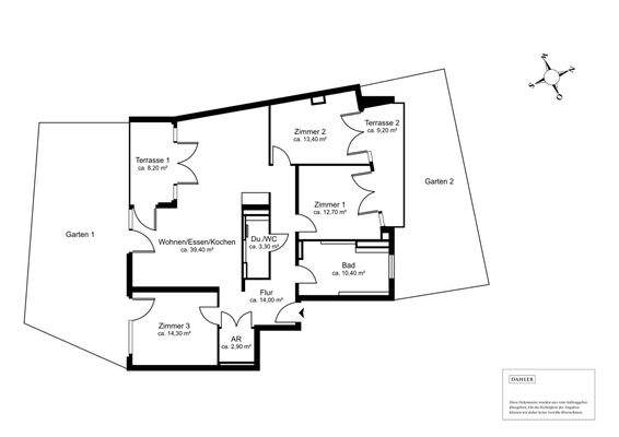
Diese moderne 4,5-Zimmer-Erdgeschosswohnung vereint Großzügigkeit, Komfort und eine hochwertige Ausstattung zu einem Zuhause mit besonderer Ausstrahlung. In einem gepflegten Wohnensemble gelegen, überzeugt die Immobilie mit einem durchdachten Grundriss, hellen Räumen und einem Wohnkonzept, das Innen- und Außenbereich auf...
Ausstattung
- 4,5-Zimmer-Erdgeschosswohnung
- Zwei Terrassen (Nord-Ost uns Süd-West)
- Zwei private Gartenanteile
- Offener Wohn-, Ess- und Küchenbereich
- Einbauküche mit Neff-Geräten (im Kaufpreis inklusive)
- Schlafzimmer
- Zwei weitere Zimmer
- Hauptbad mit Badewanne, Dusche und zwei...
Preisinformation
1 Tiefgaragenstellplatz
Ist-Mieteinnahmen pro Jahr: 15.360,00 EUR
Weitere Informationen
Sonstiges
Hinweis:
Einzelne Bilder zeigen den Zustand vor der aktuellen Vermietung. Die Darstellung dient der besseren Veranschaulichung der Räumlichkeiten. Teilweise wurden Bilder digital optimiert (z. B. Reduktion persönlicher Gegenstände).
Stichworte
Süd-West-Balkon/Terrasse, Nutzfläche: 8,00 m², Anzahl...
Anbieter der Immobilie
DAHLER Freiburg | Prüß & Company GmbH
Heinrich-von-Stephan-Straße 20, 79100 Freiburg im Breisgau

Online-ID: 2pkxy52
Referenznummer: DC-FRB-109
Finde Angebote wie dieses
Hier geht es zu unserem Impressum, den Allgemeinen Geschäftsbedingungen, den Hinweisen zum Datenschutz und nutzungsbasierter Online-Werbung.