
Hust Immobilien GmbH & Co.KG
Firma HUST Immobilien
004 ···
Nr. anzeigenPreise & Kosten
Provision für Käufer
3,57%
Lage
Die Immobilie liegt in Karlsruhe-Neureut im Stadtteil Neureut-Heide in ruhiger Lage
Optimale Infrastruktur, alle Schultypen in der Nähe, vielfältige Einkaufsmöglichkeiten und kulturelle Einrichtungen, der gewachsene Stadtteil Neureut und der kurze Weg zur Straßenbahn (ca. 100 m) lassen dieses Wohnobjekt zu einer...
Das Haus
Energie & Heizung
Warum sehe ich diese Anzeige? – Du siehst diese Anzeige basierend auf Ihrer Navigation auf unserer Website und den Suchkriterien, die du verwendet hast.
Energieausweistyp
Bedarfsausweis
Gebäudetyp
Wohngebäude
Baujahr laut Energieausweis
1936
Wesentliche Energieträger
OEL
Gültigkeit
bis 17.08.2032
Effizienzklasse
G
Endenergiebedarf
245,80 kWh/(m²·a)
Details
Objektbeschreibung
Dieses mit einem abrissreifen Einfamilienhaus in ruhiger Lage von NEUREUT - HEIDE bebaute Grundstück eignet sich ideal für:
- ein Neubauprojekt
- Bauträger
- Handwerker
- "Häuslebauer"
Dieses Einfamilienhaus befindet sich in ruhiger Lage von Neureut Heide auf einem ca. 844 m² großen Grundstück...
Ausstattung
- ca. 820 m² großes Grundstück
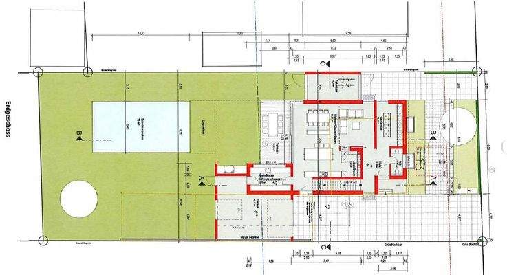
- es gab bereits eine Baugenehmigung für ein exklusives Ein-Zweifamilienhaus, siehe Pläne
(Neubau inkl. bis zu sieben Tiefgaragenstellplätze)
- alternativ auch Neubau eines MFH möglich
- Bebauungsplan "469 Heide" von 1960 liegt vor
abrissreifes Wohnhaus mit Wasserschaden (die...
Weitere Informationen
Sonstiges
Bei weiterem Interesse laden wir Sie gerne zu einer persönlichen Besichtigung vor Ort ein. Bitte legen Sie uns dazu eine aktuelle (vorläufige) Finanzierungsbestätigung Ihrer Bank oder einen Kapitalnachweis vor.
Diese Immobilie befindet sich im exklusiven Alleinauftrag von HUST Immobilien. Missbräuchliche...
Anbieter der Immobilie
Online-ID: 2pkxp53
Referenznummer: 60818
Finde Angebote wie dieses
Hier geht es zu unserem Impressum, den Allgemeinen Geschäftsbedingungen, den Hinweisen zum Datenschutz und nutzungsbasierter Online-Werbung.