

massa haus - Johannes Miller
Herr Johannes Miller
015 ···
Nr. anzeigenPreise & Kosten
Provision für Käufer
Bitte beachte, das Angebot kann bei Vertragsabschluss die Zahlung einer Provision beinhalten. Weitere Informationen erhältst Du vom Anbieter.
Lage
Die Doppelhaushälfte entsteht auf einem ca. 430 m² großen Randgrundstück in ruhiger und familienfreundlicher Wohnlage. Besonders hervorzuheben ist die direkte Lage am Naturschutzgebiet, wodurch Sie einen unverbaubaren Blick ins Grüne genießen und gleichzeitig von einer sehr naturnahen Umgebung profitieren. Spaziergänge...
Das Haus
Kategorie
Doppelhaushälfte
Baujahr
2026
Energie & Heizung
Warum sehe ich diese Anzeige? – Du siehst diese Anzeige basierend auf Ihrer Navigation auf unserer Website und den Suchkriterien, die du verwendet hast.
Weitere Energiedaten
Haustyp
KfW 55
Heizungsart
Fußbodenheizung, Luft-/Wasser-Wärmepumpe
Details
Objektbeschreibung
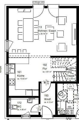
Auf einem exklusiven Randgrundstück mit ca. 430 m² entsteht diese moderne Doppelhaushälfte mit ca. 134 m² Wohnfläche, die durch eine durchdachte Architektur, helle Räume und eine familienfreundliche Raumaufteilung überzeugt. Das besondere Highlight der Immobilie ist der unverbaubare Blick in das angrenzende Naturschutzgebiet...
Ausstattung
Das angebotene Haus wird als schlüsselfertiges Energiesparhaus erstellt und überzeugt durch moderne Bauweise, hochwertige Technik sowie umfangreiche Inklusivleistungen.
Im Angebot enthalten sind unter anderem:
-Energiesparhaus auf Bodenplatte (Keller optional möglich)
-Deckenhöhe von 2,75 m für ein besonders...
Weitere Informationen
Sonstiges
Über 100 verschiedene Hausvorschläge, die noch individuell planbar sind. Sie können aus verschiedenen Ausbaustufen wählen.
AUSSERDEM BIETEN WIR IHNEN:
- Finanzierungsservice (auch ohne Eigenkapital ist bei uns das bauen möglich)
- Grundstücksservice
- mehr als 45 Jahre Bauerfahrung mit weit über...
Anbieter der Immobilie
massa haus - Johannes Miller
Bachstraße 19/2, 88682 Salem

Online-ID: 2pkvv54
Referenznummer: 70000334
Finde Angebote wie dieses
Hier geht es zu unserem Impressum, den Allgemeinen Geschäftsbedingungen, den Hinweisen zum Datenschutz und nutzungsbasierter Online-Werbung.