

Saure Immobilien e.K.
Herr Paul Saure
022 ···
Nr. anzeigenPreise & Kosten
Provision für Käufer
3.57 % inkl. MwSt.
Lage
Absolut ruhige, natur- und zentrumsnahe Wohnlage. Über den Horstmannsteg ist man fußläufig in gut 20 Minuten in der City. Die BAB ist ebenfalls nur wenige Fahrminuten entfernt. Die Bushaltestelle Allner-Zum Rosengarten (Linien 510 - Richtung Siegburg und 592 - Richtung Hennef) ist nur 2 Minuten entfernt. Allner selbst ist...
Das Haus
Kategorie
Mehrfamilienhaus
Baujahr
1958
Bezug
nach Absprache
Energie & Heizung
Warum sehe ich diese Anzeige? – Du siehst diese Anzeige basierend auf Ihrer Navigation auf unserer Website und den Suchkriterien, die du verwendet hast.
Energieausweistyp
Verbrauchsausweis
Gebäudetyp
Wohngebäude
Baujahr laut Energieausweis
1958
Wesentliche Energieträger
Öl
Gültigkeit
29.06.2023 bis 29.06.2033
Effizienzklasse
H
Endenergieverbrauch
262,39 kWh/(m²·a)
Weitere Energiedaten
Energieträger
Öl
Heizungsart
Zentralheizung
Details
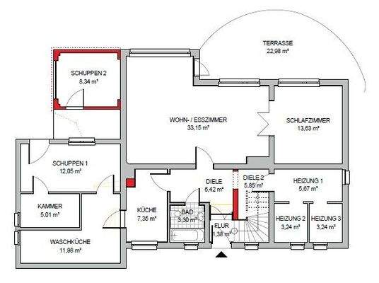
Objektbeschreibung
Dieses großzügige Zweifamilienhaus überrascht bereits beim ersten Eindruck: Hinter der eher zurückhaltenden Straßenansicht verbirgt sich, bedingt durch die Hanglage, ein echtes Raumwunder mit vielfältigen Nutzungsmöglichkeiten.
Ob klassisches Mehrgenerationenwohnen, Wohnen und Arbeiten unter einem Dach oder die...
Preisinformation
2 Stellplätze
2 Garagenstellplätze
Weitere Informationen
Sonstiges
Hinweis zur Wohnfläche:
Die Wohnfläche beträgt laut ursprünglicher Baugenehmigung ca. 170 m², da das Dachgeschoss seinerzeit als Speicher ausgewiesen wurde. Tatsächlich wird das Dachgeschoss jedoch seit jeher als Wohnraum genutzt. Ein aktuelles Flächenaufmaß hat eine Gesamtwohnfläche von rund 217 m² ergeben...
Anbieter der Immobilie
Saure Immobilien e.K.
Frankfurter Str. 124 B, 53773 Hennef (Sieg)

Online-ID: 2pkts53
Referenznummer: P2034
Finde Angebote wie dieses
Hier geht es zu unserem Impressum, den Allgemeinen Geschäftsbedingungen, den Hinweisen zum Datenschutz und nutzungsbasierter Online-Werbung.