
HVI Immobilien GmbH
Herr Burkhard Hörner
036 ···
Nr. anzeigenPreise & Kosten
Provision für Käufer
2,38 % des Kaufpreises incl. 19% MWST für Käufer und Verkäufer
Lage
Nähe Kulturhaus, ca 300 m bis zum Wald.
Einkaufsmöglichkeiten in der Nähe, Kindergarten und Ärztehaus ebenso.
Gute Verkehrsanbindung in alle Richtungen.
Schöne Randlage !
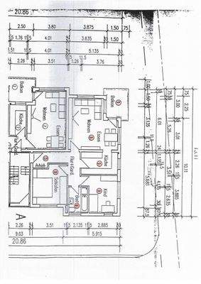
Die Wohnung
Wohnungslage
Erdgeschoss
Bezug
baldmöglichst
Wohnanlage
Energie & Heizung
Warum sehe ich diese Anzeige? – Du siehst diese Anzeige basierend auf Ihrer Navigation auf unserer Website und den Suchkriterien, die du verwendet hast.
Energieausweistyp
Verbrauchsausweis
Gebäudetyp
Wohngebäude
Baujahr laut Energieausweis
1996
Wesentliche Energieträger
Gas
Gültigkeit
14.11.2018 bis 14.11.2028
Effizienzklasse
D
Endenergieverbrauch
119,30 kWh/(m²·a) - Warmwasser enthalten
Weitere Energiedaten
Energieträger
Gas
Heizungsart
Fußbodenheizung
Details
Objektbeschreibung
Tolle 3-Zi.-Eigentumswohnung im EG eines Mehrfamilienhauses mit 9 Wohnungen in gepflegter Wohnanlage (Randlage) - Fußbodenheizung, Balkon und Außenstellplatz (keine Tiefgarage) und was das Besondere ist: ein unverbaubarer Blick !
Mit der abgeschlossenen Modernisierung Fassade inkl. Fensteranstrich und einer neuen Heizung...
Weitere Informationen
Stichworte
Serviceleistungen: Hausmeister
Sonstiges: frei werdend
Anbieter der Immobilie
HVI Immobilien GmbH
Köditzgasse 20, 07318 Saalfeld
Online-ID: 2pkqg57
Finde Angebote wie dieses
Hier geht es zu unserem Impressum, den Allgemeinen Geschäftsbedingungen, den Hinweisen zum Datenschutz und nutzungsbasierter Online-Werbung.