

VON POLL IMMOBILIEN Euskirchen - Dino Benjak
Herr Dino Benjak
022 ···
Nr. anzeigenPreise & Kosten
Provision für Käufer
Käuferprovision beträgt 3,57 % (inkl. MwSt.) des beurkundeten Kaufpreises
Lage
Zülpich besticht als charmante Mittelstadt in der malerischen Eifelregion nahe Köln durch seine ausgewogene Verbindung von ruhigem, familienfreundlichem Wohnen und einer soliden Infrastruktur. Die Stadt bietet eine sichere und lebenswerte Umgebung, die besonders Familien anspricht, die Wert auf eine harmonische Gemeinschaft...
Das Haus
Kategorie
Reihenendhaus
Baujahr
2022
Energie & Heizung
Warum sehe ich diese Anzeige? – Du siehst diese Anzeige basierend auf Ihrer Navigation auf unserer Website und den Suchkriterien, die du verwendet hast.
Energieausweistyp
Bedarfsausweis
Gebäudetyp
Wohngebäude
Baujahr laut Energieausweis
2021
Wesentliche Energieträger
LUFTWP
Gültigkeit
bis 01.02.2031
Effizienzklasse
A+
Endenergiebedarf
20,10 kWh/(m²·a)
Weitere Energiedaten
Haustyp
Massivhaus
Heizungsart
Fußbodenheizung, Luft-/Wasser-Wärmepumpe
Details
Objektbeschreibung
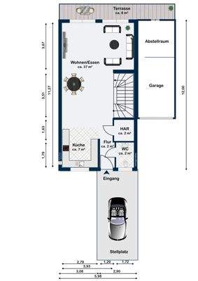
Ein Zuhause mit Klarheit, Komfort und moderner Architektur - dieses hochwertige Reihenendhaus aus dem Jahr 2022 verbindet energieeffizientes Wohnen mit großzügigem Raumangebot und einer durchdachten, familienfreundlichen Aufteilung.
Auf ca. 152 m² Wohnfläche, verteilt auf zwei Vollgeschosse und ein Staffelgeschoss mit...
Ausstattung
Innenwände: Bimssteine bzw. Kalksandsteine
Außenwände: Wärmdämmmauerwerk
Bodenplatten und Decken: Stahlbeton
Fassade: mineralischer, heller Außenputz
Dach: Flachdach mit Kies
Fenster:
- Kunststofffenster mit Freifachverglasung inklusiver RC2 Einbruchssicherung im Erdgeschoss
- elektrische...
Preisinformation
1 Garagenstellplatz
Weitere Informationen
Sonstiges
GELDWÄSCHE: Als Immobilienmaklerunternehmen ist die von Poll Immobilien GmbH nach § 2 Abs. 1 Nr. 14 und § 11 Abs. 1, 2 Geldwäschegesetz (GwG) dazu verpflichtet, bei der Begründung einer Geschäftsbeziehung die Identität des Vertragspartners festzustellen und zu überprüfen, bzw. sobald ein ernsthaftes Interesse an...
Anbieter der Immobilie

Online-ID: 2pkpa53
Referenznummer: 26 365 004
Finde Angebote wie dieses
Hier geht es zu unserem Impressum, den Allgemeinen Geschäftsbedingungen, den Hinweisen zum Datenschutz und nutzungsbasierter Online-Werbung.