
Highseller Immobilien & Finanzen
Serhad Mendekli
016 ···
Nr. anzeigenPreise & Kosten
Provision für Käufer
Es fällt keine Außenprovision an.
Die Provision ist fällig und verdient nach notarieller Beurkundung und beträgt 3,57% des notariell beurkundeten Kaufpreises.
Lage
Das Objekt befindet sich in ruhiger und begehrter Wohnlage von Erftstadt-Kierdorf, in einer gepflegten Anwohnerstraße ohne Durchgangsverkehr. Der Schildgensweg zählt zu den besonders geschätzten Adressen des Stadtteils, da er eine harmonische Mischung aus Ruhe, Privatsphäre und guter Erreichbarkeit bietet.
Kierdorf selbst...
Das Haus
Kategorie
Mehrfamilienhaus
Baujahr
1904
Bezug
Nach Vereinbarung
Energie & Heizung
Warum sehe ich diese Anzeige? – Du siehst diese Anzeige basierend auf Ihrer Navigation auf unserer Website und den Suchkriterien, die du verwendet hast.
Energieausweistyp
Verbrauchsausweis
Gebäudetyp
Wohngebäude
Wesentliche Energieträger
Öl
Gültigkeit
15.04.2025 bis 15.04.2035
Effizienzklasse
C
Endenergieverbrauch
85,90 kWh/(m²·a) - Warmwasser enthalten
Weitere Energiedaten
Energieträger
Öl
Heizungsart
offener Kamin
Details
Objektbeschreibung
Freistehendes Mehrgenerationenhaus mit Garten, Swimmingpool und Sauna in Erftstadt-Kierdorf
Willkommen in Ihrem neuen Zuhause. Dieses großzügige und liebevoll modernisierte Mehrgenerationenhaus mit Anbau aus dem Jahr 1997 vereint Wohnkomfort, Qualität und ein außergewöhnliches Raumgefühl. Es eignet sich ideal für...
Ausstattung
Objektdaten
Gebäudebaujahr: 1904
Anbau: 1997
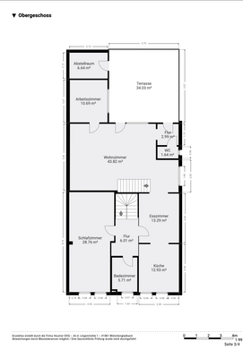
Wohnfläche: 280 m2
Grundstücksfläche: 601 m2
Zimmeranzahl: 9
Dachform: Satteldach
Dach gedämmt: Steinwolle+ Dampfsperre begehbarer Spitzboden
Denkmalschutz: Nein
Erbpacht: Nein
Modernisierung
-2.Obergeschoss: Schlafzimmer mit begehbaren...
Preisinformation
2 Garagenstellplätze
Weitere Informationen
Sonstiges
Möchten Sie Ihre Immobilie erfolgreich verkaufen?
Stellen Sie sich vor, Ihre Immobilie wird schnell, stressfrei und zum besten Preis verkauft - ohne dass Sie sich um komplizierte Formalitäten, Besichtigungen oder die Finanzierung der Käufer kümmern müssen.
Genau das ist unser täglicher Anspruch bei...
Anbieter der Immobilie
Highseller Immobilien & Finanzen
Im Zollhafen 18 Kranhaus 1 mittleres Kranhaus, 50676 Köln
Online-ID: 2pkng55
Referenznummer: 5223582
Finde Angebote wie dieses
Hier geht es zu unserem Impressum, den Allgemeinen Geschäftsbedingungen, den Hinweisen zum Datenschutz und nutzungsbasierter Online-Werbung.