
Heindrich Immobilien GmbH
Frau Lena Umbach
004 ···
Nr. anzeigenPreise & Kosten
Provision für Käufer
Käufer- und Verkäuferprovision: jeweils 2,975% (inkl. 19 % MwSt.)
Lage
Die Immobilie liegt idyllisch am naturbelassenen Ortsrand von Hessisch-Lichtenau-Walburg und bietet einen unverbaubaren Blick sowie direkten Zugang ins Grüne. Trotz der ruhigen Lage erreichen Sie Kassel in ca. 35 Minuten und profitieren von einer guten Anbindung über die A44 sowie Bus- und Tramverbindungen...
Das Haus
Kategorie
Mehrfamilienhaus
Baujahr
1981
Bezug
nach Absprache
Energie & Heizung
Warum sehe ich diese Anzeige? – Du siehst diese Anzeige basierend auf Ihrer Navigation auf unserer Website und den Suchkriterien, die du verwendet hast.
Weitere Energiedaten
Haustyp
Massivhaus
Energieträger
Öl
Heizungsart
Fußbodenheizung
Details
Objektbeschreibung
Dieses Ein- bis Zweifamilienhaus in idyllischer Randlage von Hessisch-Lichtenau überzeugt mit einem weitläufigen Gartengrundstück, einem unverbaubarem Blick ins Grüne und beeindruckenden Sonnenuntergängen.
Die einladende Diele begeistert bereits mit Travertinboden und geschwungener Holztreppe. Ein heller Wohn- und...
Ausstattung
-Ein- bis Familienfamilienhaus
-Massiv-Bauweise
-Fußböden: Parkett, Travertin im Eingangsbereich und Fliesen, Teppich
-Tageslichtbad mit Wanne und Dusche & Gäste-WC (EG) | weiteres Tageslichtbad mit Dusche (UG)
-Einbauküche
-Panoramaterrasse mit Wintergarten, 2012 und Gartenzugang (Hauptebene) &...
Preisinformation
1 Garagenstellplatz
Weitere Informationen
Sonstiges
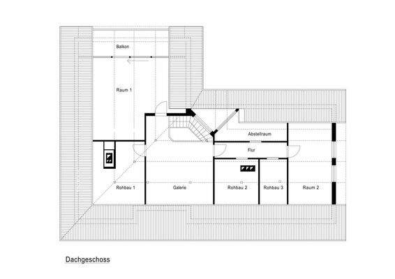
Hinweis: Die hier gezeigten Grundrisse basieren auf zum Haus vorhandenen Bestandsplänen und sind auf der Grundlage einer Begehung vor Ort aktualisiert worden. Sie verstehen sich als "Visualisierung" und sind nicht maßstabsgetreu.
DER ENERGIEAUSWEIS BEFINDET SICH DERZEIT IN DER ERSTELLUNG.
HINWEIS...
Anbieter der Immobilie
Heindrich Immobilien GmbH
Goethestraße 21, 34119 Kassel
Online-ID: 2pkml57
Referenznummer: VK.2026.Ried.Heli
Finde Angebote wie dieses
Hier geht es zu unserem Impressum, den Allgemeinen Geschäftsbedingungen, den Hinweisen zum Datenschutz und nutzungsbasierter Online-Werbung.