

1% Immobilien
033 ···
Nr. anzeigenPreise & Kosten
Provision für Käufer
3,57% vom Kaufpreis
Lage
Das charmante Zweifamilienhaus befindet sich in der idyllischen Gemeinde Fredersdorf-Vogelsdorf, eingebettet in eine ruhige und naturnahe Umgebung. Diese attraktive Lage bietet die perfekte Kombination aus Wohnkomfort und gewerblicher Nutzung, ideal für Geschäftskunden und Pendler.
Die gute Anbindung an den...
Das Haus
Kategorie
Mehrfamilienhaus
Baujahr
2014
Bezug
nach Absprache
Energie & Heizung
Warum sehe ich diese Anzeige? – Du siehst diese Anzeige basierend auf Ihrer Navigation auf unserer Website und den Suchkriterien, die du verwendet hast.
Weitere Energiedaten
Heizungsart
Zentralheizung
Details
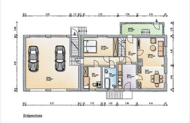
Objektbeschreibung
Entdecken Sie diese besondere Immobilie in Fredersdorf-Vogelsdorf bei Berlin!
Dieses gepflegte Zweifamilienhaus bietet eine ideale Kombination aus Wohnkomfort und vielseitigen Nutzungsmöglichkeiten. Das im Jahr 2011 kernsanierte und 2014 erweiterte Anwesen erstreckt sich über eine großzügige Grundstücksfläche von ca. 1.230...
Ausstattung
Allgemeine Angaben:
- Bebauung: freistehendes Zweifamilienhaus
- Nutzungsart: Selbstnutzung (Wohnen & Gewerbe)
- Grundstu?ck: 4-eckig, trapezförmig, Eckgrundstu?ck
- Grenzverhältnisse: geklärt
- Zuwegung: direkt, 2 Zufahrten
- Ver- und Entsorgung: voll erschlossen, Glasfaseranschluss geplant
-...
Preisinformation
6 Stellplätze
2 Garagenstellplätze
Weitere Informationen
Sonstiges
Die Immobilie wird im Auftrag von 1% Immobilien angeboten.
Bitte beachten Sie auch den beigefügten Datenschutz und die Wiederrufsbelehrungen.
Sie haben noch keine Finanzierung? Sprechen Sie uns an - wir vermitteln Ihnen gerne einen Ansprechpartner, der für Sie ein unverbindliches Angebot...
Anbieter der Immobilie
Online-ID: 2pkdu57
Referenznummer: 26-03h2
Finde Angebote wie dieses
Hier geht es zu unserem Impressum, den Allgemeinen Geschäftsbedingungen, den Hinweisen zum Datenschutz und nutzungsbasierter Online-Werbung.