

DAHLER Potsdam | Berlin-Wannsee | Kleinmachnow
Herr Robert Perenz
033 ···
Nr. anzeigenPreise & Kosten
Provision für Käufer
3,57% inkl. MwSt. bezogen auf den beurkundeten Kaufpreis
Lage
Kleinmachnow ist eine Gemeinde mit ca. 20.000 Einwohnern im Landkreis Potsdam-Mittelmark in Brandenburg. Sie liegt zwischen Berlin und Potsdam an der südlichen Stadtgrenze zu Berlin und Zehlendorf-Nikolassee. Besondere Attraktivität erhält der Ort durch die vorherrschende Bebauung mit Villen-, Land- und Siedlungshäusern in...
Das Haus
Kategorie
Einfamilienhaus
Baujahr
2007
Energie & Heizung
Warum sehe ich diese Anzeige? – Du siehst diese Anzeige basierend auf Ihrer Navigation auf unserer Website und den Suchkriterien, die du verwendet hast.
Energieausweistyp
Verbrauchsausweis
Gebäudetyp
Wohngebäude
Baujahr laut Energieausweis
2007
Wesentliche Energieträger
GAS
Gültigkeit
bis 26.04.2032
Effizienzklasse
C
Endenergieverbrauch
87,50 kWh/(m²·a)
Weitere Energiedaten
Energieträger
Gas
Heizungsart
offener Kamin, Zentralheizung
Details
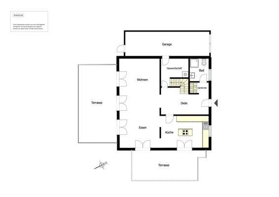
Objektbeschreibung
Am Ende einer ruhigen Straße steht diese im Jahr 2007 erbaute Stadtvilla auf einem ca. 770 m² großen Gartengrundstück. Durch die klassisch schlichte und moderne Kubatur fügt sich das Haus ideal in die Bebauung der Nachbarschaft ein. Die Umgebung ist vor allem durch alten Baumbestand sowie stilvolle und prächtige Alt- und...
Ausstattung
. ca. 770 m² optimal geschnittenes Grundstück
. ca. 227 m² Wohnfläche und ca. 75 m² Nutzfläche
. Baujahr 2007
. 4 Zimmer (3 potenzielle Schlafzimmer)
. 2 Badezimmer (1 Bad En Suite)
. 2 großzügige Terrassen aus Naturstein
. exzellent gepflegter Zustand
. praktischer und durchdachter Grundriss
...
Preisinformation
1 Stellplatz
1 Garagenstellplatz
Weitere Informationen
Sonstiges
Ihre Werte sind bei uns in besten Händen
DAHLER & COMPANY ist auf die Vermittlung hochwertiger Wohnimmobilien in bevorzugten Lagen spezialisiert. Seit über 25 Jahren wird unser Unternehmen von Kirsten und Björn Dahler geführt und setzt mit Innovationskraft und Servicequalität Maßstäbe in der Branche...
Anbieter der Immobilie

Online-ID: 2pkdb57
Referenznummer: D-KLM7165-6-LIV
Finde Angebote wie dieses
Hier geht es zu unserem Impressum, den Allgemeinen Geschäftsbedingungen, den Hinweisen zum Datenschutz und nutzungsbasierter Online-Werbung.