
Crozilla.com
Mirjana Mikulec Real Estate
+38 ···
Nr. anzeigenPreise & Kosten
Provision für Käufer
Bitte beachte, das Angebot kann bei Vertragsabschluss die Zahlung einer Provision beinhalten. Weitere Informationen erhältst Du vom Anbieter.
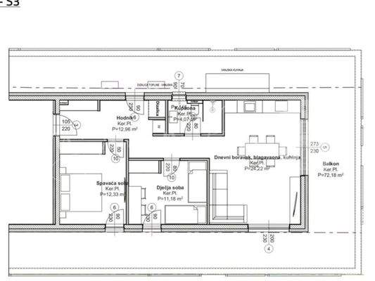
Die Wohnung
Wohnungslage
1. Geschoss
Details
Objektbeschreibung
Prodaja stanova u novogradnji u samom centru Sesveta.
Dojmljivi projekt, modernog dizajna i vrhunske kvalitete gradnje nalazi se centru Sesveta, okruzen obiteljskim kucama.
Ono sto ovaj projekt istice od drugih je zavidna kvadratura vanjskog prostora. Prostrane terase i vrtovi u prizemlju, ovaj projekt izdvajaju od...
Weitere Informationen
Stichworte
Anzahl der Schlafzimmer: 2, 1 Etagen
Anbieter der Immobilie
Crozilla.com
Nova cesta 60, 10000 ZAGREB
Online-ID: 2pkbp58
Referenznummer: 18733206_5
Finde Angebote wie dieses
Hier geht es zu unserem Impressum, den Allgemeinen Geschäftsbedingungen, den Hinweisen zum Datenschutz und nutzungsbasierter Online-Werbung.