
Crozilla.com
Mirakul nekretnine
+38 ···
Nr. anzeigenPreise & Kosten
Provision für Käufer
Bitte beachte, das Angebot kann bei Vertragsabschluss die Zahlung einer Provision beinhalten. Weitere Informationen erhältst Du vom Anbieter.
Die Immobilie
Zu diesem Angebot wurden vom Anbieter keine weiteren Daten hinterlegt. Für weitere Informationen bitte den Anbieter kontaktieren.
Nach Informationen fragenDetails
Objektbeschreibung
NEUBAU
HERVORRAGENDE LAGE
Erdgeschosswohnung mit Pool in Betina in Meeresnähe zu verkaufen.
Die Wohnung befindet sich in einem Wohngebäude mit insgesamt 7 Wohneinheiten.
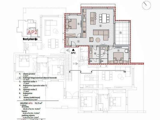
WOHNUNG AP2
Sie besteht aus Eingangsbereich, Esszimmer, Küche, Wohnzimmer, zwei Schlafzimmern, zwei Badezimmern und einer...
Weitere Informationen
Stichworte
Anzahl der Schlafzimmer: 2, Anzahl der Badezimmer: 2, 1 Etagen
Anbieter der Immobilie
Crozilla.com
Nova cesta 60, 10000 ZAGREB
Online-ID: 2pkal54
Referenznummer: 19488130_2
Finde Angebote wie dieses
Hier geht es zu unserem Impressum, den Allgemeinen Geschäftsbedingungen, den Hinweisen zum Datenschutz und nutzungsbasierter Online-Werbung.