

VR Bank Heilbronn Schwäbisch Hall eG
Herr Sahin Aki
071 ···
Nr. anzeigenPreise & Kosten
Provision für Käufer
3,57 % inkl. MwSt. aus dem Kaufpreis
Lage
Das Einfamilienhaus befindet sich in Flein. Die ruhige und idyllische Lage des Hauses bietet seinen Bewohnern eine angenehme Wohnatmosphäre. Die Umgebung zeichnet sich durch eine gute Infrastruktur und eine gute Anbindung an öffentliche Verkehrsmittel aus. Einkaufsmöglichkeiten, Schulen und Freizeiteinrichtungen sind in der...
Das Haus
Kategorie
Einfamilienhaus
Baujahr
1963
Bezug
sofort frei
Energie & Heizung
Warum sehe ich diese Anzeige? – Du siehst diese Anzeige basierend auf Ihrer Navigation auf unserer Website und den Suchkriterien, die du verwendet hast.
Energieausweistyp
Bedarfsausweis
Gebäudetyp
Wohngebäude
Baujahr laut Energieausweis
1963
Wesentliche Energieträger
GAS
Gültigkeit
bis 17.03.2036
Effizienzklasse
H
Endenergiebedarf
251,60 kWh/(m²·a)
Weitere Energiedaten
Haustyp
Massivhaus
Energieträger
Gas
Heizungsart
Zentralheizung
Details
Objektbeschreibung
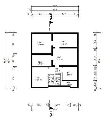
Willkommen in Flein, wo Sie die Möglichkeit haben, ein Einfamilienhaus aus dem Jahr 1963 zu erwerben. Diese Immobilie bietet auf ca. 651 m² Grundstücksfläche ein großzügiges Platzangebot und umfasst ca. 130 m² Wohnfläche, ergänzt durch ca. 68 m² Nutzfläche im Keller.
Das Haus verfügt über fünf Zimmer, darunter drei...
Preisinformation
1 Stellplatz
1 Garagenstellplatz
Weitere Informationen
Stichworte
Nutzfläche: 68,23 m², Anzahl der Schlafzimmer: 3, Anzahl der Badezimmer: 1, Anzahl Balkone: 2, Anzahl Terrassen: 1
Sonstiges/Wohnen: Dachboden
Anbieter der Immobilie

Online-ID: 2pka354
Referenznummer: 18031
Finde Angebote wie dieses
Hier geht es zu unserem Impressum, den Allgemeinen Geschäftsbedingungen, den Hinweisen zum Datenschutz und nutzungsbasierter Online-Werbung.