
Müller Merkle Immobilien GmbH
Frau Charlotte Jakob
Kontaktiere den Anbieter schriftlich, es ist keine Telefonnummer hinterlegt.
Preise & Kosten
Kaution
1800
Warum sehe ich diese Anzeige? – Du siehst diese Anzeige basierend auf Ihrer Navigation auf unserer Website und den Suchkriterien, die du verwendet hast.
Lage
Weimars Nordstadt ist ein noch junger Stadtteil, der zunehmend an Bedeutung gewinnt. Mit steigenden Einwohnerzahlen, gemischtem Altersdurchschnitt, besten Betreuungs- und Einkaufsmöglichkeiten, ist er besonders für Familien attraktiv, auch, weil er sich durch soziales Engagement auszeichnet. Mit dem Mehrgenerationenhaus bspw...
Die Wohnung
Wohnungslage
Erdgeschoss
Bezug
sofort
Wohnanlage
Energie & Heizung
Warum sehe ich diese Anzeige? – Du siehst diese Anzeige basierend auf Ihrer Navigation auf unserer Website und den Suchkriterien, die du verwendet hast.
Energieausweistyp
Bedarfsausweis
Gebäudetyp
Wohngebäude
Wesentliche Energieträger
Wärmelieferung
Gültigkeit
23.07.2023 bis 24.07.2033
Effizienzklasse
A
Endenergiebedarf
46,20 kWh/(m²·a)
Weitere Energiedaten
Energieträger
Fernwärme
Details
Objektbeschreibung
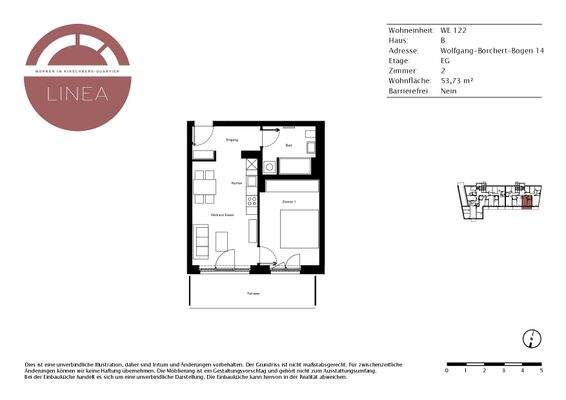
Die lichtdurchflutete 2-Zimmer-Wohnung startet mit einem kleinen Flur der in das moderne Duschbad mit Waschmaschinenanschluss führt. Über den angrenzenden Wohn- und Essbereich mit offener Küche gelangt man auf einen großen Balkon welcher den Wohnbereich und das Schlafzimmer miteinander verbindet.
Ausstattung
Kompakte Grundrisse kennzeichnen die gut geschnittenen 1- bis 4-Zimmerwohnungen, die zur individuellen Gestaltung einladen. Wahlweise stehen offene oder geschlossene Küchen sowie moderne Badezimmer zur Verfügung. Allen Wohnungen gemein ist die Ausstattung mit Terrassen im Erdgeschoss und Loggien oder Balkonen in den...
Preisinformation
1 Stellplatz, Miete: 50,00 EUR
Weitere Informationen
Sonstiges
ANFRAGEN BITTE ÜBER DAS KONTAKTFORMULAR!
Wir verweisen vorsorglich daraufhin, dass bei Mietvertragsabschluss eine 12 monatige Mindestmietdauer und eine Indexmiete vereinbart werden.
Bei den Bildern handelt es sich um unverbindliche...
Anbieter der Immobilie
Müller Merkle Immobilien GmbH
Galileistraße 1, 69115 Heidelberg
Frau Charlotte Jakob
Dein Ansprechpartner
Kontaktiere den Anbieter schriftlich, es ist keine Telefonnummer hinterlegt.
Online-ID: 2pk8f54
Referenznummer: LIN-122#EpnLD
Finde Angebote wie dieses
Hier geht es zu unserem Impressum, den Allgemeinen Geschäftsbedingungen, den Hinweisen zum Datenschutz und nutzungsbasierter Online-Werbung.