
Crozilla.com
Kaiser Immobilien d.o.o.
+38 ···
Nr. anzeigenPreise & Kosten
Provision für Käufer
Bitte beachte, das Angebot kann bei Vertragsabschluss die Zahlung einer Provision beinhalten. Weitere Informationen erhältst Du vom Anbieter.
Die Wohnung
Wohnungslage
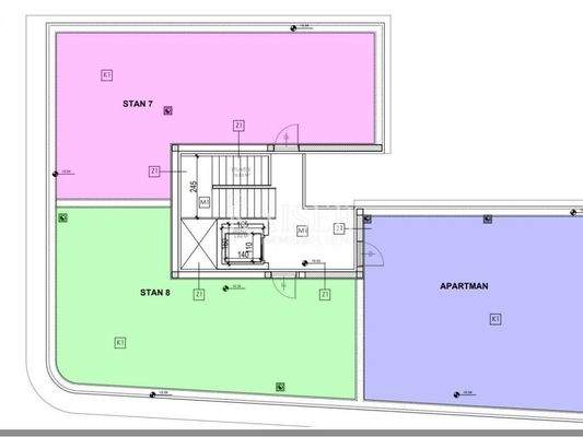
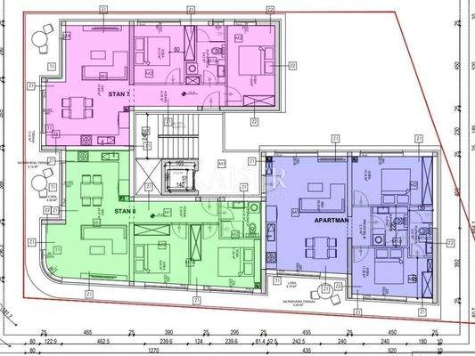
2. Geschoss
Wohnanlage
Details
Objektbeschreibung
Kaiser Immobilien präsentiert: Zadar, Sv.Petar - Penthouse im 2. Stock eines modernen Neubaus mit Dachterrasse Wir bieten eine geräumige Wohnung im Bau, die sich im zweiten Stock eines modernen Neubaus befindet. Die Wohnung hat eine Wohnfläche von 85,33 m² und verfügt außerdem über eine große Dachterrasse von 16,42 m²...
Weitere Informationen
Stichworte
Anzahl der Schlafzimmer: 2, Anzahl der Badezimmer: 1, 1 Etagen
Anbieter der Immobilie
Crozilla.com
Nova cesta 60, 10000 ZAGREB
Online-ID: 2pk5r57
Referenznummer: 19234003_1
Finde Angebote wie dieses
Hier geht es zu unserem Impressum, den Allgemeinen Geschäftsbedingungen, den Hinweisen zum Datenschutz und nutzungsbasierter Online-Werbung.