
Immobilien Sollmann+Zagel GmbH
Herr Jochen Sollmann
+49 ···
Nr. anzeigenPreise & Kosten
zzgl. Nebenkosten
Kaution
3 Kaltmieten
Provision für Mieter
provisionsfrei
Warum sehe ich diese Anzeige? – Du siehst diese Anzeige basierend auf Ihrer Navigation auf unserer Website und den Suchkriterien, die du verwendet hast.
Büro-/Praxisfläche
Baujahr
2022
Energie & Heizung
Warum sehe ich diese Anzeige? – Du siehst diese Anzeige basierend auf Ihrer Navigation auf unserer Website und den Suchkriterien, die du verwendet hast.
Wärme
Energieausweistyp
Bedarfsausweis
Gebäudetyp
Nicht-Wohngebäude
Wesentliche Energieträger
Erdgas schwer
Gültigkeit
15.07.2022 bis 14.07.2032
Endenergiebedarf (Wärme)
91,00 kWh/(m²·a)
Weitere Energiedaten
Heizungsart
Fußbodenheizung
Details
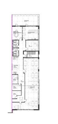
Objektbeschreibung
Erstklassiges, modernes, Büro mit Stellplätzen in einem Gewerbegebiet im Nordosten der Hansestadt Rostock, in unmittelbarer Hafen - und Autobahnnähe (A19 -Rostock -Berlin)
Busverbindungen zum Stadtzentrum Rostocks, stündliche Fahrverbindungen tagsüber, zum morgendlichen Arbeitszeitbeginn alle 30 min., zum abendlichen...
Ausstattung
. Heizung: Fußbodenheizung mit Wärmepumpe
. Fenster: Wärmedämmglas 3-fach ;Ug =0,6 W(m²K)
. Klimatisierung: nur Belüftungsanlage aber keine Klimaanlage
. Internet: Glasfaser bis 1.000 Mbit/s oder DSL vorhanden
. Leitungen: das Büro ist komplett verkabelt, die Kabel liegen in Kabelkanälen
Weitere Informationen
Sonstiges
Strom inkl. Heizung 650,-- € pro Monat
Betriebskostenpauschale 600,-- € monatlich
Aktuell ist das Büro komplett möbliert
die Miete pro Stellplatz beträgt 40,-- € monatlich
Energieausweis wird momentan erstellt
Stichworte
Gesamtfläche: 485,00 m², Anzahl Balkone: 1, Bundesland...
Anbieter der Immobilie

Immobilien Sollmann+Zagel GmbH
Online-ID: 2pk3j55
Referenznummer: N9371
Finde Angebote wie dieses
Hier geht es zu unserem Impressum, den Allgemeinen Geschäftsbedingungen, den Hinweisen zum Datenschutz und nutzungsbasierter Online-Werbung.