
Vereinigte Volksbanken eG
Frau Giovanna Bonfiglio
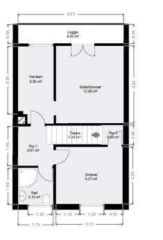
004 ···
Nr. anzeigenPreise & Kosten
Provision für Käufer
3,570% inkl. MwSt.
Lage
Das angebotene Reiheneckhaus befindet sich in einer begehrten Wohnlage von Reutlingen, einer dynamischen und lebenswerten Stadt im Herzen Baden-Württembergs. Das Stadtgebiet 'Voller Brunnen' ist eine beliebte Wohnlage von Reutlingen und hat eine sehr gute Infrastruktur. In unmittelbarer Lauf Nähe befinden sich alle Geschäfte...
Das Haus
Kategorie
Reihenendhaus
Baujahr
1956
Bezug
sofort
Energie & Heizung
Warum sehe ich diese Anzeige? – Du siehst diese Anzeige basierend auf Ihrer Navigation auf unserer Website und den Suchkriterien, die du verwendet hast.
Energieausweistyp
Bedarfsausweis
Gebäudetyp
Wohngebäude
Wesentliche Energieträger
ERDGAS_LEICHT
Gültigkeit
bis 02.12.2035
Effizienzklasse
H
Endenergiebedarf
453,81 kWh/(m²·a)
Weitere Energiedaten
Energieträger
Gas
Heizungsart
Ofen
Details
Objektbeschreibung
Willkommen in Ihrem neuen Zuhause im charmanten Reutlinger Ortsteil Voller Brunnen. Dieses gepflegte Reiheneckhaus, erbaut im Jahr 1957, bietet Ihnen ca. 88 m² Wohnfläche und steht ab sofort zum Kauf bereit. Auf einem Grundstück von etwa 258 m² bietet dieses zweigeschossige Haus viel Komfort und eine hervorragende...
Ausstattung
- Terrasse mit großem Garten und Markise
- überdachter Balkon mit Markise
- Sauna + Whirlpool mit Zugang zum Garten
- Wasseranschluss im Garten
- Gäste-WC+ separat in jedem Geschoss
- Gartenhäuschen
- Keller mit separater Werkzeugkammer
- Carport
- Gas-Kachelofen im Wohnzimmer , weitere Räume...
Preisinformation
1 Carportplatz
Weitere Informationen
Sonstiges
- Gaszähler neu 2020
- Ausenrolladen neu 2021
- neuer Gas Einsatz 2006
- renovierter Eingangsbereich aus Jahr 2020
- Plexiglas Balkon neu 2021
- Haus dedämmt
- Fenster alle ausgetauscht und neu
Stichworte
Carport vorhanden, Nutzfläche: 95,20 m², Anzahl der Schlafzimmer: 2, Anzahl der...
Anbieter der Immobilie
Vereinigte Volksbanken eG
Friedrich-List-Platz 1, 71032 Böblingen
Online-ID: 2pjxk54
Referenznummer: 251314
Finde Angebote wie dieses
Hier geht es zu unserem Impressum, den Allgemeinen Geschäftsbedingungen, den Hinweisen zum Datenschutz und nutzungsbasierter Online-Werbung.