
Holger Robra Immobilien
Herr Holger Robra
+49 ···
Nr. anzeigenPreise & Kosten
Verhandlungsbasis
Provision für Käufer
Bitte beachte, das Angebot kann bei Vertragsabschluss die Zahlung einer Provision beinhalten. Weitere Informationen erhältst Du vom Anbieter.
Lage
Die Immobilie befindet sich in Wülmersen, einem Ortsteil der Gemeinde Dähre in der westlichen Altmark. Die Umgebung ist geprägt von ländlicher Ruhe, weiten Landschaften und einer gewachsenen Dorfgemeinschaft.
Im nahegelegenen Hauptort Dähre stehen Einrichtungen des täglichen Bedarfs zur Verfügung, darunter...
Das Haus
Kategorie
Einfamilienhaus
Baujahr
1900
Energie & Heizung
Warum sehe ich diese Anzeige? – Du siehst diese Anzeige basierend auf Ihrer Navigation auf unserer Website und den Suchkriterien, die du verwendet hast.
Energieausweistyp
Bedarfsausweis
Gebäudetyp
Wohngebäude
Baujahr laut Energieausweis
1900
Wesentliche Energieträger
Gas
Effizienzklasse
H
Endenergiebedarf
265,00 kWh/(m²·a)
Weitere Energiedaten
Haustyp
Massivhaus
Energieträger
Gas
Heizungsart
Ofen, Zentralheizung
Details
Objektbeschreibung
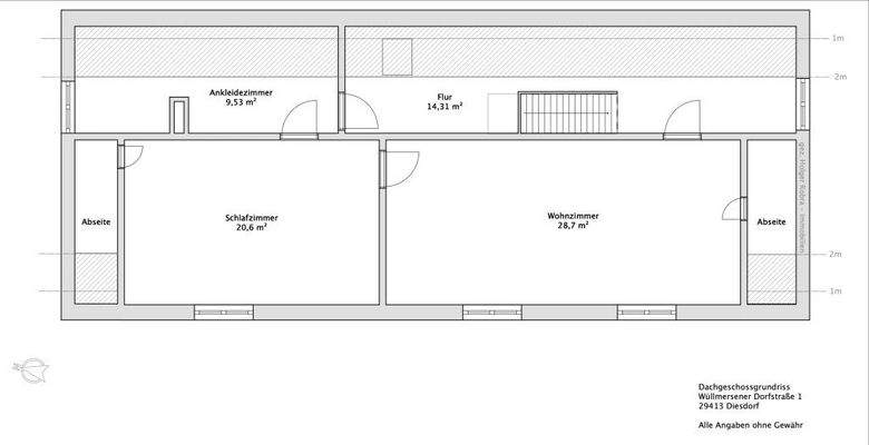
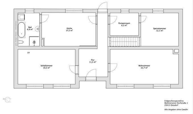
Das Einfamilienhaus wurde um 1900 in Massivbauweise errichtet und 1974 erweitert. Es bietet rund 169 m² Wohnfläche mit insgesamt 6 Zimmern. Zwei gut erhaltene Kachelöfen sorgen für eine angenehme Wohnatmosphäre.
Das ca. 2.420 m² große Grundstück liegt in ruhiger Dorfrandlage und bietet viel Platz für individuelle...
Ausstattung
. Holzfenster an der Vorderseite (2001) mit Rollläden und Dämmung
. Fenster im Obergeschoss ebenfalls aus 2001
. Rückseitige Fenster mit Verbundverglasung
. Zwei zugelassene Kachelöfen
. Gastherme (Vaillant, Baujahr 1992)
. Ebenenebene Dusche
. Einbauküche verbleibt im Haus (inkl. Gasherd)
. Fußböden...
Weitere Informationen
Provision
Käufer-Provision 3,57 % des Kaufpreises
Sonstiges
Bitte bewahren Sie die Privatsphäre der Eigentümer und betreten Sie das Grundstück nicht. Vereinbaren Sie ausschließlich mit unserem Büro Ihre Besichtigung. Wir freuen uns auf Sie! Dieses Objekt bieten wir im Alleinauftrag an.
In dem Kurzexposé...
Anbieter der Immobilie
Online-ID: 2pjnh57
Referenznummer: K360202
Finde Angebote wie dieses
Hier geht es zu unserem Impressum, den Allgemeinen Geschäftsbedingungen, den Hinweisen zum Datenschutz und nutzungsbasierter Online-Werbung.