

Gräser Immobilien
Firma Gräser Immobilien
081 ···
Nr. anzeigenPreise & Kosten
Provision für Käufer
provisionsfrei
Lage
Willkommen in Gilching - einem der begehrtesten Wohnorte im Landkreis Starnberg. Nur wenige Minuten von der Landeshauptstadt entfernt, verbindet die Gemeinde ideale Infrastruktur mit hohem Freizeitwert. Ob Familien, Berufspendler oder Naturliebhaber - wer Wert auf kurze Wege, eine gehobene Nachbarschaft und hervorragende...
Das Haus
Kategorie
Doppelhaushälfte
Baujahr
2026
Bezug
nach Vereinbarung
Energie & Heizung
Warum sehe ich diese Anzeige? – Du siehst diese Anzeige basierend auf Ihrer Navigation auf unserer Website und den Suchkriterien, die du verwendet hast.
Energieausweistyp
Bedarfsausweis
Gebäudetyp
Wohngebäude
Baujahr laut Energieausweis
2026
Gültigkeit
bis 11.12.2035
Effizienzklasse
A+
Endenergiebedarf
23,20 kWh/(m²·a)
Weitere Energiedaten
Heizungsart
Fußbodenheizung, Luft-/Wasser-Wärmepumpe
Details
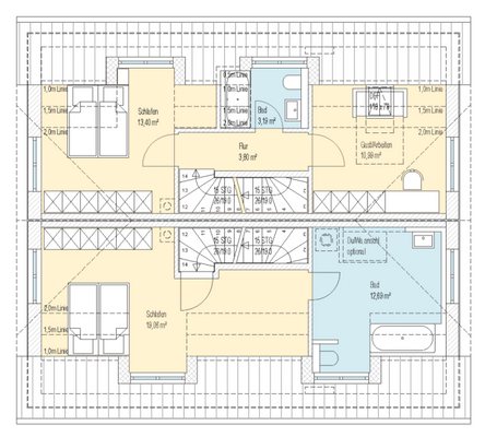
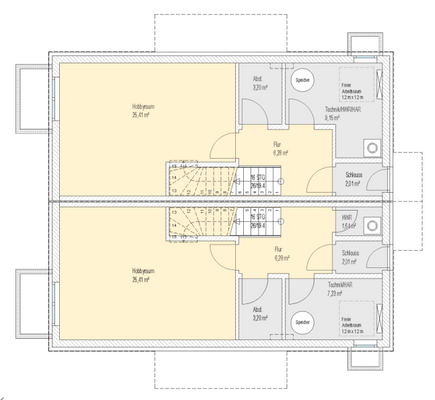
Objektbeschreibung
Für alle, die in der IT-, Luft- oder Raumfahrtbranche tätig sind, ist Gilching als High-Tech-Standort längst ein Begriff. Diese DHH ist die Antwort auf die moderne Arbeitswelt. Dank der flexiblen 5- bis 7-Zimmer-Varianten können Sie hier nicht nur ein, sondern gleich zwei vollwertige Büros einrichten - perfekt getrennt vom...
Ausstattung
Ausstattung
* Realteilung
* Energieeffiziente Luft-Wasser-Wärmepumpe
* Photovoltaik-Anlage
* Dezentrale Lüftungsanlage für optimales Raumklima
* Wärmedämmendes, energiesparendes Außenwandsystem (Ziegelmassivbauweise)
* Fußbodenheizung in allen Wohnräumen mit Einzelsteuerung
* 3-fach verglaste...
Preisinformation
2 Tiefgaragenstellplätze, Kaufpreis je: 27.500,00 EUR
Weitere Informationen
Sonstiges
ZUR BEACHTUNG:
Dieses Angebot ist freibleibend und unverbindlich - Irrtum sowie Zwischenverkauf bzw. Zwischenvermietung bleiben vorbehalten.
Die Angaben basieren auf Informationen des Eigentümers und der Behörden; eine Haftung für die Richtigkeit wird nicht übernommen.
HINWEIS:
Der Käufer...
Anbieter der Immobilie
Gräser Immobilien
Melchior-Fanger-Str. 31, 82205 Gilching

Online-ID: 2pjkl57
Referenznummer: 2230_2_IW
Finde Angebote wie dieses
Hier geht es zu unserem Impressum, den Allgemeinen Geschäftsbedingungen, den Hinweisen zum Datenschutz und nutzungsbasierter Online-Werbung.