
Schwabenhaus Rosenheim - Niklas Schumacher - Handelsvertretung für die Schwabenhaus GmbH
Herr Niklas Schumacher
+49 ···
Nr. anzeigenPreise & Kosten
Provision für Käufer
provisionsfrei
Lage
Gröbenzell - Familienfreundliches Wohnen vor den Toren Münchens
Gröbenzell, im Westen Münchens gelegen, zählt zu den beliebtesten Wohnorten im Münchner Umland. Die Gemeinde verbindet den Charme einer ruhigen Gartenstadt mit der unmittelbaren Nähe zur bayerischen Landeshauptstadt. Dank der hervorragenden Anbindung über...
Das Haus
Kategorie
Einfamilienhaus
Energie & Heizung
Warum sehe ich diese Anzeige? – Du siehst diese Anzeige basierend auf Ihrer Navigation auf unserer Website und den Suchkriterien, die du verwendet hast.
Weitere Energiedaten
Heizungsart
Fußbodenheizung
Details
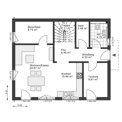
Objektbeschreibung
WELCOME HOME. WELCOME TO YOUR FUTURE.
Dein Zuhause ist mehr als vier Wände - es ist dein Rückzugsort, dein Investment, dein neuer Lebensabschnitt.
White&Black macht Wohneigentum bezahlbar, modern und flexibel.
Jetzt ist der richtige Moment, um anzukommen.
Ausstattung
THINK WHITE - Do it yourself.
- Fertige Gebäudehülle - du entscheidest über den Innenausbau
- Maximale Individualität - für kreative Köpfe & Macher
- Ideal für Eigenleistung - handwerkliches Geschick spart bares Geld
- Optimierte Grundrisse - smarte Wohnkonzepte für flexible Gestaltung
-...
Weitere Informationen
Sonstiges
Das Haus ist projektiert inkl. Grundstück. Das Grundstück wird in Kommission angeboten bzw. direkt von Dritten verkauft. Daher kann der genannte Preis aufgrund aktueller Marktsituationen schwanken.
Die Bauabwicklung kann kurzfristig nach Grundstückserwerb begonnen werden. Bilder zeigen möglicherweise...
Anbieter der Immobilie
Schwabenhaus Rosenheim - Niklas Schumacher - Handelsvertretung für die Schwabenhaus GmbH
Hauptstraße 4d, 83339 Chieming

Online-ID: 2pjhc56
Referenznummer: WB-35120-Gröbenzell
Finde Angebote wie dieses
Hier geht es zu unserem Impressum, den Allgemeinen Geschäftsbedingungen, den Hinweisen zum Datenschutz und nutzungsbasierter Online-Werbung.