
ohne-makler.net - Immobilien selbst vermarkten
Privat von Wolfgang Thul
Kontaktiere den Anbieter schriftlich, es ist keine Telefonnummer hinterlegt.
Preise & Kosten
Provision für Käufer
provisionsfrei
Lage
Die Wohnung befindet sich im beliebten Stadtteil Kalbach, der für seine grüne Umgebung, die familienfreundliche Atmosphäre und die hervorragende Verkehrsanbindung bekannt ist. Hier geniessen Sie eine hohe Lebensqualität mit direktem Zugang zur Natur und allen wichtigen Einrichtungen des täglichen...
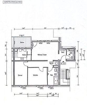
Die Wohnung
Wohnungslage
1. Geschoss
Bezug
01.05.2026
Wohnanlage
Energie & Heizung
Warum sehe ich diese Anzeige? – Du siehst diese Anzeige basierend auf Ihrer Navigation auf unserer Website und den Suchkriterien, die du verwendet hast.
Energieausweistyp
Bedarfsausweis
Gebäudetyp
Wohngebäude
Effizienzklasse
C
Endenergiebedarf
88,00 kWh/(m²·a)
Weitere Energiedaten
Energieträger
Gas
Heizungsart
Zentralheizung
Details
Objektbeschreibung
Diese moderne, nahezu neuwertige 3-Zimmer-Wohnung befindet sich im 1. Obergeschoss eines sehr gepflegten Neubaukomplexes aus dem Jahr 2015/2016 (Erstbezug 2017). Die Immobilie wurde seit dem Erstbezug durchgehend vom Eigentümer selbst bewohnt und befindet sich daher in einem überdurchschnittlich gepflegten Zustand. Die...
Ausstattung
Balkon, Keller, Fahrstuhl, Vollbad, Einbauküche, Gäste-WC, Barrierefrei, Parkett, Fliesen
Bemerkungen:
. Baujahr 2015/2016 - Erstbezug 2017 (sehr gepflegter, nahezu neuwertiger Zustand - seit Erstbezug durchgehend vom Eigentümer bewohnt)
. Das Gebäude wird durch eine finanziell solide WEG verwaltet. Die...
Preisinformation
1 Tiefgaragenstellplatz, Kaufpreis: 18.300,00 EUR
Weitere Informationen
Sonstiges
Heizungsart: Zentralheizung
Energieträger: Gas
Der Verkauf erfolgt privat - von Makleranfragen bitten wir abzusehen.
Benötigte Unterlagen können digital zur Verfügung gestellt werden.
Wir bitten um Verständnis, dass Besichtigungstermine vorrangig Interessenten mit nachweislich gesicherter...
Anbieter der Immobilie
ohne-makler.net - Immobilien selbst vermarkten
Humboldtstr. 25 A, 21509 Glinde
Privat von Wolfgang Thul
Dein Ansprechpartner
Kontaktiere den Anbieter schriftlich, es ist keine Telefonnummer hinterlegt.
Online-ID: 2pj9v54
Referenznummer: 412424
Finde Angebote wie dieses
Weitere Immobilien
Hier geht es zu unserem Impressum, den Allgemeinen Geschäftsbedingungen, den Hinweisen zum Datenschutz und nutzungsbasierter Online-Werbung.