

Gründer Immobilien
Herr Ralf Gründer
049 ···
Nr. anzeigenPreise & Kosten
Provision für Käufer
provisionsfrei
Lage
Neusustrum - Ländliche Idylle mit hoher Lebensqualität
Neusustrum, eine charmante Gemeinde im Landkreis Emsland, steht für naturnahes Wohnen in einer ruhigen, entspannten Atmosphäre. Umgeben von Feldern, Wäldern und Wasserläufen genießen Sie hier eine Landschaft, die Erholung pur verspricht. Die Region lädt zu ausgedehnten...
Das Haus
Kategorie
Einfamilienhaus
Baujahr
2008
Bezug
nach Vereinbarung
Energie & Heizung
Warum sehe ich diese Anzeige? – Du siehst diese Anzeige basierend auf Ihrer Navigation auf unserer Website und den Suchkriterien, die du verwendet hast.
Weitere Energiedaten
Heizungsart
Fußbodenheizung
Details
Objektbeschreibung
Willkommen in Ihrem privaten Rückzugsort am Waldrand von Neusustrum!
Dieses exklusive Wohnhaus in absoluter Sackgassenendlage bietet auf ca. 170 m² Wohnfläche und einem 1.480 m² großen Traumgrundstück höchsten Wohnkomfort inmitten unberührter Natur. Genießen Sie den unverbaubaren Blick in den Wald, einen liebevoll...
Ausstattung
Durchdacht bis ins kleinste Detail
Dieses Wohnhaus überzeugt nicht nur mit seiner Lage und dem besonderen Charme, sondern auch mit vielen Ausstattungsdetails, die Komfort, Sicherheit und Lebensqualität spürbar steigern. Jede Lösung wurde mit Bedacht gewählt, um den Alltag so angenehm wie möglich zu...
Preisinformation
3 Garagenstellplätze
Weitere Informationen
Sonstiges
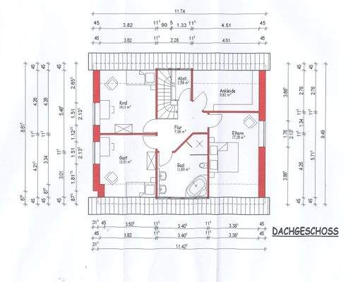
Wohnflächenaufteilung:
Erdgeschoss:
Flur ca. 7,31 m²
Wohnzimmer ca.49,35 m²
Küche ca. 13,80 m²
Hauswirtschaftsraum ca.9,95 m²
Gäste-WC ca. 1,94 m²
Dachgeschoss:
Flur ca. 7,08 m²
Badezimmer ca.11,89 m²
Schlafzimmer ca.17,28 m²
Ankleidezimmer ca.9,82 m²
Schlafzimmer ca.14,11...
Anbieter der Immobilie
Gründer Immobilien
Haupstraße 97, 26892 Dörpen

Online-ID: 2pj6f54
Referenznummer: 8497
Finde Angebote wie dieses
Hier geht es zu unserem Impressum, den Allgemeinen Geschäftsbedingungen, den Hinweisen zum Datenschutz und nutzungsbasierter Online-Werbung.