
freie immo
Jan Pickhardt
+49 ···
Nr. anzeigenPreise & Kosten
Provision für Käufer
7,14 % inkl. 19 % MwSt.
Die Provision von 7,14% versteht sich inkl. 19% MwSt. und wird aus dem beurkundeten Kaufpreis errechnet.
Lage
Das Wohn- und Geschäftshaus befindet sich in Meißen-Cölln, rechts der Elbe, in einer der nachgefragten und lebendigen Lagen der Porzellanstadt. Der Stadtteil überzeugt durch seine zentrale Anbindung an die historische Altstadt von Meißen sowie durch eine gewachsene Infrastruktur mit Einkaufsmöglichkeiten, Gastronomie, Schulen...
Das Haus
Kategorie
Mehrfamilienhaus
Baujahr
1950
Bezug
sofort
Derzeitige Nutzung
vermietet
Energie & Heizung
Warum sehe ich diese Anzeige? – Du siehst diese Anzeige basierend auf Ihrer Navigation auf unserer Website und den Suchkriterien, die du verwendet hast.
Energieausweistyp
Verbrauchsausweis
Gebäudetyp
Wohngebäude
Wesentliche Energieträger
Gas
Gültigkeit
23.06.2025 bis 22.06.2035
Effizienzklasse
E
Endenergieverbrauch
142,70 kWh/(m²·a)
Weitere Energiedaten
Energieträger
Gas
Heizungsart
Zentralheizung
Details
Objektbeschreibung
Dieses kleine Wohn- und Geschäftshaus, im zukunftsweisenden Stadtteil, Meißen-Cölln und die Lage direkt an der frisch sanierten "Robert Koch Residenz", bietet Anlegern eine solide Investitionsmöglichkeit mit stabiler Mieterstruktur. Das im Jahr 1950 errichtete Gebäude verfügt über eine Gesamtfläche von ca. 306 m² und wurde...
Ausstattung
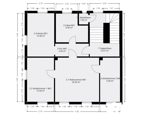
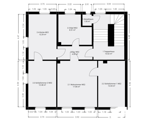
- 2 kleine Gewerbeinheiten im Erdgeschoss
- 3 Wohnungen, eine je Etage
- 1. und 2. OG mit 3 Zimmern
- DG mit 2 Zimmern
- Jahres-Netto-Kaltmiete: 16.877,16 EUR
- voll vermietet
- Sanierung 1996
- neue Heizungsanlage 2010
- Sanierungsgebiet (bereits abgelöst)
Energieausweis: Verbrauch...
Preisinformation
Nettorendite Ist in %: 7,37
Nettorendite Soll in %: 7,37
Soll-Mieteinnahmen pro Jahr: 16.877,16 EUR
Ist-Mieteinnahmen pro Jahr: 16.877,16 EUR
Weitere Informationen
Sonstiges
HINWEIS: Eine Bearbeitung Ihrer Anfrage kann nur erfolgen, wenn Sie uns mindestens folgende Kontaktdaten übermitteln: - Name - Vorname - Anschrift - Telefonnummer und / oder E-Mail-Adresse. Eine Datenschutz konforme Behandlung Ihrer Kundendaten ist dabei selbstverständlich. Wir bedanken uns für Ihr Verständnis...
Anbieter der Immobilie
freie immo
Herkulesstraße 24, 01277 Dresden
Online-ID: 2pj3f54
Referenznummer: 331881
Finde Angebote wie dieses
Hier geht es zu unserem Impressum, den Allgemeinen Geschäftsbedingungen, den Hinweisen zum Datenschutz und nutzungsbasierter Online-Werbung.