
Crozilla.com
Ekspert Realestate
+38 ···
Nr. anzeigenPreise & Kosten
Provision für Käufer
Bitte beachte, das Angebot kann bei Vertragsabschluss die Zahlung einer Provision beinhalten. Weitere Informationen erhältst Du vom Anbieter.
Die Immobilie
Zu diesem Angebot wurden vom Anbieter keine weiteren Daten hinterlegt. Für weitere Informationen bitte den Anbieter kontaktieren.
Nach Informationen fragenDetails
Objektbeschreibung
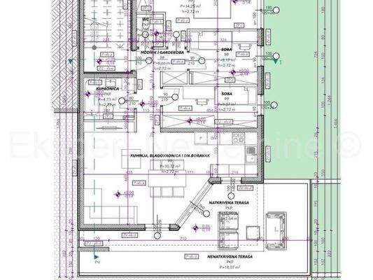
Trogir, Ciovo, Saldun, Dreizimmerwohnung 110 m2 (76 m2 plus 34 m2 terrasse) + Garten (50 m2) in einem Neubau in einem kleineren Wohnhaus mit nur 4 Wohnungen. Die Wohnung befindet sich im Erdgeschossdes Gebäudes und besteht aus drei Schlafzimmern, Bad, WC, Flur, Küche mit Esszimmer und Wohnzimmer sowie einer großen Terrasse...
Weitere Informationen
Stichworte
Anzahl der Schlafzimmer: 3, Anzahl der Badezimmer: 2, 1 Etagen
Anbieter der Immobilie
Crozilla.com
Nova cesta 60, 10000 ZAGREB
Online-ID: 2phzr57
Referenznummer: 18604932_5
Finde Angebote wie dieses
Hier geht es zu unserem Impressum, den Allgemeinen Geschäftsbedingungen, den Hinweisen zum Datenschutz und nutzungsbasierter Online-Werbung.