

ImmobilienBüro Ehlers
Frau Luisa Lichtner
038 ···
Nr. anzeigenPreise & Kosten
Provision für Käufer
3,570 % inkl. MwSt.
Das Haus
Kategorie
Einfamilienhaus
Baujahr
1929
Bezug
nach Absprache
Energie & Heizung
Warum sehe ich diese Anzeige? – Du siehst diese Anzeige basierend auf Ihrer Navigation auf unserer Website und den Suchkriterien, die du verwendet hast.
Energieausweistyp
Bedarfsausweis
Gebäudetyp
Wohngebäude
Wesentliche Energieträger
Heizöl
Effizienzklasse
G
Endenergiebedarf
246,70 kWh/(m²·a)
Weitere Energiedaten
Energieträger
Öl
Details
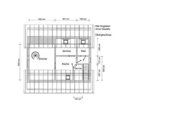
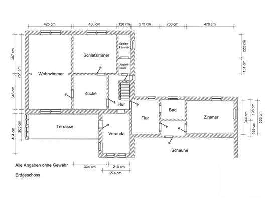
Objektbeschreibung
Hoppenrade, gelegen in der idyllischen Mecklenburgischen Seenplatte, überzeugt durch seine ruhige, naturnahe Lage und den dörflichen Charme. Umgeben von weitläufigen Feldern, Wäldern und zahlreichen Seen bietet der Ort ideale Voraussetzungen für alle, die dem hektischen Stadtleben entfliehen und die Natur in vollen Zügen...
Preisinformation
3 Stellplätze
2 Garagenstellplätze
Weitere Informationen
Stichworte
Anzahl Terrassen: 1, Bundesland: Mecklenburg-Vorpommern
Anbieter der Immobilie
ImmobilienBüro Ehlers
Gleviner Straße 33, 18273 Güstrow

Online-ID: 2phya57
Referenznummer: 0-900004687
Finde Angebote wie dieses
Hier geht es zu unserem Impressum, den Allgemeinen Geschäftsbedingungen, den Hinweisen zum Datenschutz und nutzungsbasierter Online-Werbung.