
Dr. Tronnier Immobilien GmbH & Co. KG
Cornelia Brinkmann
Kontaktiere den Anbieter schriftlich, es ist keine Telefonnummer hinterlegt.
Preise & Kosten
Kaution
1021
Warum sehe ich diese Anzeige? – Du siehst diese Anzeige basierend auf Ihrer Navigation auf unserer Website und den Suchkriterien, die du verwendet hast.
Lage
Das Objekt befindet sich im Magdeburger Stadtteil Ottersleben, einem ruhigen und gewachsenen Wohngebiet im südwestlichen Teil der Landeshauptstadt. Der Stadtteil zeichnet sich durch eine angenehme Mischung aus Einfamilienhäusern, kleineren Mehrfamilienhäusern und viel Grün aus.
Die Schreberstraße ist verkehrstechnisch...
Die Wohnung
Wohnungslage
Dachgeschoss
Bezug
Juni 2026
Wohnanlage
Energie & Heizung
Warum sehe ich diese Anzeige? – Du siehst diese Anzeige basierend auf Ihrer Navigation auf unserer Website und den Suchkriterien, die du verwendet hast.
Energieausweistyp
Verbrauchsausweis
Gebäudetyp
Wohngebäude
Baujahr laut Energieausweis
1996
Wesentliche Energieträger
Heizwerk, fossil
Gültigkeit
07.12.2022 bis 06.12.2032
Effizienzklasse
B
Endenergieverbrauch
66,50 kWh/(m²·a)
Weitere Energiedaten
Heizungsart
Zentralheizung
Details
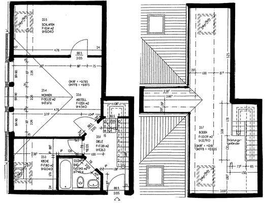
Objektbeschreibung
Diese schöne 2-Zimmer Wohnung befindet sich im Dachgeschoss eines gepflegten Mehrfamilienhauses in Ottersleben - Schreberstraße 13. Die Wohnfläche setzt sich aus dem Dachgeschoss mit ca. 47qm und einem ausgebauten Spitzboden (Atelier) mit ca. 18qm zusammen. Im Dachgeschoss bietet sie ein Wohnzimmer, eine Küche mit Einbauküche...
Ausstattung
- Decken - und Wandflächen Raufasertapete
- Küche mit EBK ausgestattet
(mit Geschirrspüler, Kühlkombination, Cerankochfeld, Keramikspüle)
- Bad mit Dusche, Waschtisch und WC
- 1 STP (20,00€)
- Kellerraum
- Fahrradkeller zur gemeinschaftlichen Nutzung
Weitere Informationen
HINWEISE
Die Wohnung ist ab Juni bezugsfrei. Bei Interesse können Sie die Wohnung nach Absprache mit dem jetzigen Mieter gern besichtigen.
Zur Wohnung gehört ein PKW-Stellplatz. Die monatliche Miete von 20,00 € ist in der angegebenen Kaltmiete nicht enthalten. Die Kaltmiete setzt sich wie folgt zusammen: 490,50€ +...
Anbieter der Immobilie
Cornelia Brinkmann
Dein Ansprechpartner
Kontaktiere den Anbieter schriftlich, es ist keine Telefonnummer hinterlegt.
Online-ID: 2phw553
Referenznummer: 272-02-055-0342
Finde Angebote wie dieses
Hier geht es zu unserem Impressum, den Allgemeinen Geschäftsbedingungen, den Hinweisen zum Datenschutz und nutzungsbasierter Online-Werbung.