

Living in Berlin - my pink Immobilien GmbH
Frau Anja Meyer
004 ···
Nr. anzeigenPreise & Kosten
Kaution
2.614,20
Warum sehe ich diese Anzeige? – Du siehst diese Anzeige basierend auf Ihrer Navigation auf unserer Website und den Suchkriterien, die du verwendet hast.
Lage
Oranienburg ist eine große kreisangehörige Stadt und Mittelzentrum an der Oberhavel und liegt wenige Kilometer nördlich der Berliner Stadtgrenze. Das Stadtzentrum Berlins ist etwa 35 Kilometer entfernt. Durch Oranienburg führt in West-Ost-Richtung die Bundesstraße 273 von Nauen nach Wandlitz. Die Bundesstraße 96 umgeht auf...
Die Wohnung
Wohnungslage
Dachgeschoss
Bezug
16.04.2026
Wohnanlage
Energie & Heizung
Warum sehe ich diese Anzeige? – Du siehst diese Anzeige basierend auf Ihrer Navigation auf unserer Website und den Suchkriterien, die du verwendet hast.
Energieausweistyp
Verbrauchsausweis
Gebäudetyp
Wohngebäude
Wesentliche Energieträger
GAS
Gültigkeit
bis 31.05.2032
Effizienzklasse
C
Endenergieverbrauch
81,20 kWh/(m²·a)
Weitere Energiedaten
Heizungsart
Zentralheizung
Details
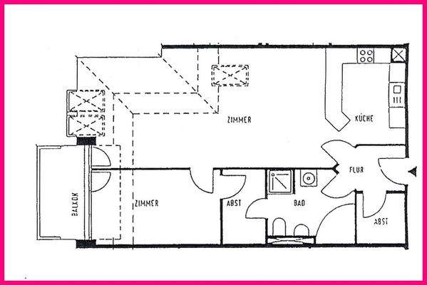
Objektbeschreibung
Ihre neue Wohnung befindet sich im Dachgeschoss des 1997 erbauten Hauses. Die gesamte Wohnanlage ist von vielen Grünanlagen umgeben. Die Wohnung wird mit einer Gaszentralheizung beheizt. Es sind doppelt verglaste Holz- sowie Kunststofffenster verbaut.
Ausstattung
Ihre neue Wohnung ist modern geschnitten und sehr hell. Die Wohnfläche beträgt ca. 87,14 m², verteilt auf einen Flur nebst Abstellraum, ein Wohnzimmer mit offener Küche, ein Schlafzimmer mit Abstellraum bzw. Ankleide, ein innenliegendes Badezimmer mit Dusche und Badewanne und einen Balkon. Die offene Küche ist mit einer...
Preisinformation
1 Stellplatz, Miete: 50,00 EUR
Weitere Informationen
Stichworte
Anzahl der Schlafzimmer: 1, Anzahl der Badezimmer: 1, Anzahl Balkone: 1, 3 Etagen
Anbieter der Immobilie
Living in Berlin - my pink Immobilien GmbH
Hönower Straße 72, 12623 Berlin

Online-ID: 2phw454
Referenznummer: WE902
Finde Angebote wie dieses
Hier geht es zu unserem Impressum, den Allgemeinen Geschäftsbedingungen, den Hinweisen zum Datenschutz und nutzungsbasierter Online-Werbung.