
PRIOCASA Immobilien & Finanzservice
Frau Gabi Burghardt
+49 ···
Nr. anzeigenPreise & Kosten
Provision für Käufer
3,57% inkl. MwSt inkl. MwSt.
3,57% inkl. MwSt
Lage
Der Bungalow befindet sich in dem Örtchen Nusbaum, einer ruhigen und malerischen Gegend in dem Ort mit einer entspannten Atmosphäre. Die Umgebung ist geprägt von grünen Wiesen und Wäldern, ideal für Naturliebhaber und Menschen, die gerne im Freien aktiv sind. In unmittelbarer Nähe finden sich kleine Geschäfte und Cafés, die...
Das Haus
Kategorie
Bungalow
Baujahr
1978
Bezug
Per Absprache
Energie & Heizung
Warum sehe ich diese Anzeige? – Du siehst diese Anzeige basierend auf Ihrer Navigation auf unserer Website und den Suchkriterien, die du verwendet hast.
Energieausweistyp
Bedarfsausweis
Gebäudetyp
Wohngebäude
Wesentliche Energieträger
Öl
Gültigkeit
13.12.2025 bis 12.12.2035
Effizienzklasse
F
Endenergiebedarf
197,50 kWh/(m²·a)
Weitere Energiedaten
Energieträger
Öl
Heizungsart
offener Kamin
Details
Objektbeschreibung
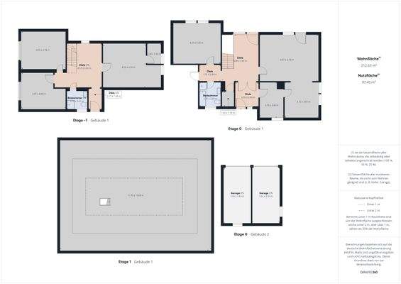
Dieser charmante Bungalow aus dem Jahr 1978 besticht durch seine großzügige Wohnfläche von 176 m² auf einer ebenerdigen Ebene. Die Immobilie verfügt über insgesamt 6 Zimmer, darunter 4 Schlafzimmer und ein Badezimmer. Die Öl-Heizung sorgt für behagliche Wärme in allen Räumlichkeiten. Eine Terrasse lädt zum Entspannen im...
Ausstattung
Die Immobilie verfügt über einen Edelstahl-Kaminanschluss, der für Gemütlichkeit und Wärme sorgt. Zudem ist eine Gästetoilette vorhanden, die den Komfort für Besucher erhöht. Die Qualität der Ausstattung ist als normal einzustufen, was eine solide Grundlage für eine angenehme Wohnatmosphäre bietet. Mit diesen Merkmalen ist...
Preisinformation
6 Stellplätze
2 Garagenstellplätze
Weitere Informationen
Sonstiges
++ PROVISION: 3,57% inkl. MwSt ++
Da wir Objektangaben nicht selbst ermitteln, übernehmen wir hierfür keine Gewähr. Dieses Exposé ist nur für Sie persönlich bestimmt. Eine Weitergabe an Dritte ist an unsere ausdrückliche Zustimmung gebunden und unterbindet nicht unseren Provisionsanspruch bei...
Dokumente
Anbieter der Immobilie
PRIOCASA Immobilien & Finanzservice
Am Boden 3, 54634 Bitburg
Online-ID: 2phtm57
Referenznummer: 165#44MDhz
Finde Angebote wie dieses
Hier geht es zu unserem Impressum, den Allgemeinen Geschäftsbedingungen, den Hinweisen zum Datenschutz und nutzungsbasierter Online-Werbung.