
allkauf haus GmbH
Herr Stefan May
+49 ···
Nr. anzeigenPreise & Kosten
Provision für Käufer
provisionsfrei
Lage
Leutershausen besticht durch eine angenehme und familienfreundliche Siedlungslage mit guter Infrastruktur. Einkaufsmöglichkeiten, Schulen und Kindergärten sind in kurzer Zeit erreichbar. Freizeitangebote in der Umgebung bieten zahlreiche Möglichkeiten zur Erholung und aktiven Gestaltung Ihrer Freizeit. Die ruhige Lage sorgt...
Das Haus
Kategorie
Doppelhaushälfte
Bezug
2027
Energie & Heizung
Warum sehe ich diese Anzeige? – Du siehst diese Anzeige basierend auf Ihrer Navigation auf unserer Website und den Suchkriterien, die du verwendet hast.
Weitere Energiedaten
Haustyp
KfW 55
Heizungsart
Fußbodenheizung, Luft-/Wasser-Wärmepumpe
Details
Objektbeschreibung
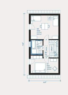
Diese projektiert geplante Doppelhaushälfte in der ruhigen Siedlung von Leutershausen bietet Ihnen ein komfortables Zuhause mit 3,0 Zimmern auf 113,64 m² Wohnfläche. Das großzügige 450 m² große Grundstück schafft viel Platz für Familie und Freizeit. Mit 2 Etagen, 2 Schlafzimmern, einem modernen Badezimmer und einem...
Ausstattung
Die Ausstattung ist gehoben und umfasst unter anderem eine moderne Luft-Wasser-Wärmepumpe, die nicht nur umweltfreundlich heizt, sondern auch für eine effiziente und nachhaltige Energieversorgung sorgt. Der KfW55-Standard garantiert Ihnen ein Niedrigenergiehaus mit niedrigem Verbrauch und hoher Energieeffizienz. Zu den...
Weitere Informationen
Sonstiges
allkauf heißt für Sie maximale Sicherheit, kurze Lieferzeiten und garantierte Fertigstellung. Wir bieten Ihnen mit unseren drei Dienstleistungspaketen VIELBESCHÄFTIGTE, AMBITIONIERTE und HEIMWERKER optimale Unterstützung - ganz nach Ihrem Wunsch, ob Sie vieles selbst umsetzen oder lieber Profis beauftragen...
Anbieter der Immobilie
allkauf haus GmbH
Ludwig Erhard Str. 2, 68162 Bad Vilbel
Online-ID: 2phqx53
Referenznummer: 3748-325-kw13-79976
Finde Angebote wie dieses
Hier geht es zu unserem Impressum, den Allgemeinen Geschäftsbedingungen, den Hinweisen zum Datenschutz und nutzungsbasierter Online-Werbung.