
Kemna Immobilien Gruppe - LS Immobilien GmbH
Herr Stefan Kemna
023 ···
Nr. anzeigenPreise & Kosten
Provision für Käufer
3% Provision des notariellen Kaufpreises zuzüglich der gesetzlichen Mehrwertsteuer für die Käufer, also insgesamt 3,57%. Weitere Informationen siehe Provisionshinweis.
Lage
Die Immobilie im modernen Baustil steht oberhalb vom Zentrum in Fröndenberg. Von dort aus benötigt man ca. 10 Minuten fußläufig in die Innenstadt. Mit seinen ca. 22.000 Einwohnern zählt Fröndenberg zu den kleineren Gemeinden in der Region, es ist dort ein beschauliches Leben.
Fröndenberg liegt im Kreis Unna und grenzt im...
Das Haus
Geschosse
1 Geschoss
Baujahr
2011
Bezug
nach Absprache
Energie & Heizung
Warum sehe ich diese Anzeige? – Du siehst diese Anzeige basierend auf Ihrer Navigation auf unserer Website und den Suchkriterien, die du verwendet hast.
Energieausweistyp
Bedarfsausweis
Gebäudetyp
Wohngebäude
Baujahr laut Energieausweis
2011
Gültigkeit
19.08.2024 bis 01.08.2034
Effizienzklasse
A
Endenergiebedarf
48,70 kWh/(m²·a)
Details
Objektbeschreibung
Kurzbeschreibung
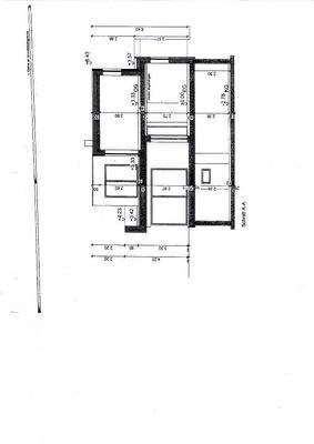
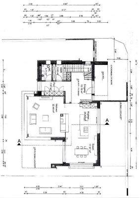
EG: Flur mit Treppenaufgang, offene Küche mit Esszimmer, Wohnzimmer mit Kamin, Gäste WC,
OG: Bad mit Dusche und Badewanne, Elternschlafzimmer, zwei Kinderzimmer oder Büro, Ankleidezimmer, Balkon
KG: Tiefgarage 4 Stellplätze, ein Wäschekeller, zwei Kellerräume
Energieausweis: laut Gesetz nicht...
Ausstattung
193 qm Wohnfläche und 120 qm Nutzfläche im Keller incl. Garage. Grundstücksgröße 889 qm mit rund 500 qm Gartenanteil. Flachdach.
5 Zimmer auf zwei Etagen verteilt, sowie im Keller einen Wäscheraum, zwei weiter Räume und die Garage.
Highlights sind:
gehobene Ausstattung der Immobilie, sehr gepflegter Garten, kein...
Preisinformation
Grunderwerbssteuer, Notar- und Gerichtskosten trägt der Käufer.
Weitere Informationen
Provisionshinweis
3% Provision des notariellen Kaufpreises zuzüglich der gesetzlichen Mehrwertsteuer für die Käufer, also insgesamt 3,57%.
Der Makler-Vertrag mit uns kommt durch die Bestätigung der Inanspruchnahme unserer Maklertätigkeit in Textform zustande, wie z.B. die Kontaktaufnahme aufgrund dieses Exposés und/oder...
Anbieter der Immobilie
Kemna Immobilien Gruppe - LS Immobilien GmbH
Gutenbergstr. 2b, 59174 Kamen
Online-ID: 2phnq53
Referenznummer: 880
Finde Angebote wie dieses
Hier geht es zu unserem Impressum, den Allgemeinen Geschäftsbedingungen, den Hinweisen zum Datenschutz und nutzungsbasierter Online-Werbung.