
Andreas Otté Immobilienvermittlung
Herr Talal Heres
030 ···
Nr. anzeigenPreise & Kosten
Provision für Käufer
3,57 % inkl. 19 % MwSt. inkl. MwSt.
Lage
Die Immobilie befindet sich in attraktiver und ruhiger Wohnlage im südlichen Berliner Bezirk Rudow.
Besonders hervorzuheben ist die unmittelbare Nähe zum gewachsenen Ortskern, der mit seiner angenehmen Mischung aus Einkaufsmöglichkeiten, Gastronomie, Ärzten und Dienstleistungen den täglichen Bedarf bequem abdeckt. Hier...
Das Haus
Kategorie
Einfamilienhaus
Baujahr
1976
Bezug
zeitnah, nach Absprache
Energie & Heizung
Warum sehe ich diese Anzeige? – Du siehst diese Anzeige basierend auf Ihrer Navigation auf unserer Website und den Suchkriterien, die du verwendet hast.
Energieausweistyp
Verbrauchsausweis
Gebäudetyp
Wohngebäude
Baujahr laut Energieausweis
1976
Gültigkeit
bis 19.06.2026
Endenergieverbrauch
85,50 kWh/(m²·a)
Weitere Energiedaten
Energieträger
Öl
Heizungsart
Zentralheizung
Details
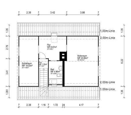
Objektbeschreibung
Dieses gepflegte Einfamilienhaus überzeugt mit einer großzügigen Wohnfläche von ca. 131 m² und einer durchdachten Raumaufteilung, die ideal auf die Bedürfnisse einer Familie zugeschnitten ist. Das Haus wurde 1976 als Fertighaus der Firma Okal errichtet und befindet sich auf einem optimal geschnittenen Grundstück mit ca. 437...
Ausstattung
Das Haus ist voll unterkellert und bietet mit ca. 90 m² Nutzfläche (inkl. Spitzboden) vielfältige Nutzungsmöglichkeiten.
Neben einer Diele stehen ein Abstellraum, ein beheizter Hobbyraum mit Tageslicht sowie ein Heizungs- und Waschraum zur Verfügung.
Der Keller ist sowohl über das Haus als auch über einen separaten...
Preisinformation
1 Garagenstellplatz
Weitere Informationen
Sonstiges
Ein ideales Zuhause für Familien, die Wert auf großzügiges Wohnen, flexible Nutzungsmöglichkeiten und eine ruhige Lage legen.
Besonders hervorzuheben ist das Potenzial zur Schaffung einer Einliegerwohnung - eine seltene Gelegenheit mit vielfältigen Perspektiven.
Stichworte
Garage vorhanden...
Anbieter der Immobilie

Andreas Otté Immobilienvermittlung
Online-ID: 2phkq56
Referenznummer: 12015
Finde Angebote wie dieses
Hier geht es zu unserem Impressum, den Allgemeinen Geschäftsbedingungen, den Hinweisen zum Datenschutz und nutzungsbasierter Online-Werbung.