
eXp Realty Germany GmbH
Frau Daniela Leuschke-Hildebrandt
004 ···
Nr. anzeigenPreise & Kosten
Provision für Käufer
4,76 inkl. MwSt. vom Kaufpreis inkl. MwSt.
Lage
Die Immobilie befindet sich in ruhiger und gewachsener Wohnlage von Nürtingen im beliebten Wohngebiet Vendelaustraße.
Das Umfeld ist geprägt von gepflegten Ein- und Mehrfamilienhäusern, viel Grün sowie einer angenehmen Nachbarschaft - ideal für Familien, Paare oder Ruhesuchende.
Nürtingen liegt im Herzen des...
Das Haus
Kategorie
Mehrfamilienhaus
Details
Objektbeschreibung
Dieses Mehrfamilienhaus im Zentrum von Nürtingen mit Gewerbeeinheit im Erdgeschoss, welches von der Stadt Nürtingen auch zu 100% zu Wohnzwecken umgenutzt werden kann bietet zahlreiche Möglichkeiten für Kapitalanleger und Familien.
Das Objekt ist gepflegt und wurde 2014/2015 durch umfangreiche Sanierungsmaßnahmen und...
Ausstattung
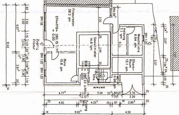
EG - 54 m²
___________________
1 Ladenfläche mit 38,2 m², 1 Büro mit 15,8 m², 1 WC, 1 Waschküche/ Heizungsraum/ Heizölraum/ Gewölbekeller - Umbaubar zum Wohnraum mit weiteren zwei Zimmern zur Vermietung
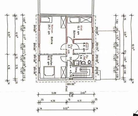
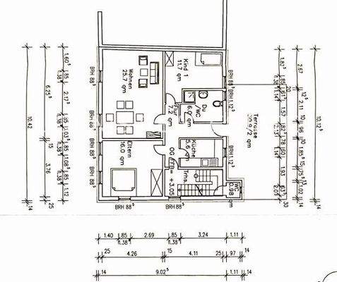
1. OG - 72,5 m² + Terrasse mit 30,9 m²
___________________
3 1/2 Zimmer mit 1 Schlafzimmer, 1...
Preisinformation
Ist-Mieteinnahmen pro Jahr: 46.200,00 EUR
Weitere Informationen
Sonstiges
Haben wir Ihr Interesse geweckt? Gerne übersenden wir Ihnen ein ausführliches Exposé mit weiteren Details und der genauen Adresse der Immobilie. Selbstverständlich stehen wir für weitere Informationen oder einen Besichtigungstermin jederzeit zur Verfügung.
Wir bitten um Verständnis, dass wir nur...
Anbieter der Immobilie
eXp Realty Germany GmbH
Reutlinger Strasse 13, 70597 Stuttgart
Online-ID: 2phkc53
Referenznummer: LRE26158
Finde Angebote wie dieses
Hier geht es zu unserem Impressum, den Allgemeinen Geschäftsbedingungen, den Hinweisen zum Datenschutz und nutzungsbasierter Online-Werbung.