
Sotheby´s International Realty NRW/Pantera Living Köln GmbH
Sandra Schlesinger
020 ···
Nr. anzeigenPreise & Kosten
zzgl. Nebenkosten
Kaution
3 Kaltmieten
Warum sehe ich diese Anzeige? – Du siehst diese Anzeige basierend auf Ihrer Navigation auf unserer Website und den Suchkriterien, die du verwendet hast.
Lage
Bredeney ist zweifellos der bekannteste und begehrteste Stadtteil im Essener Süden und gilt als die erste Adresse für gehobenes Wohnen. Das Herzstück von Bredeney, das Stadtzentrum, bietet eine beeindruckende Vielfalt von Annehmlichkeiten. Hier findet man nicht nur exklusive Feinkostläden, erstklassige medizinische Versorgung...
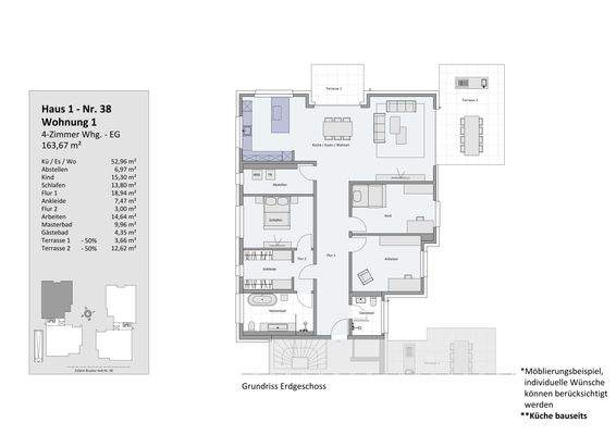
Die Wohnung
Wohnungslage
Erdgeschoss
Bezug
01.06.2026
Wohnanlage
Energie & Heizung
Warum sehe ich diese Anzeige? – Du siehst diese Anzeige basierend auf Ihrer Navigation auf unserer Website und den Suchkriterien, die du verwendet hast.
Energieausweistyp
Bedarfsausweis
Gebäudetyp
Wohngebäude
Wesentliche Energieträger
Strom
Gültigkeit
10.02.2023 bis 10.02.2033
Endenergiebedarf
28,00 kWh/(m²·a)
Weitere Energiedaten
Energieträger
Elektro
Details
Objektbeschreibung
Diese außergewöhnlich großzügige Erdgeschosswohnung vereint die Qualitäten eines freistehenden Hauses mit dem Komfort und der Sicherheit einer modernen, architektonisch anspruchsvollen Stadtvilla. Bereits beim Betreten entfaltet sich ein Raumgefühl, das durch klare Linien, großzügige Sichtachsen und eine durchdachte...
Ausstattung
Bodenbeläge & Oberflächen
- Hochwertiger Design-Vinylboden (Gerflor Creation 55, "Bostonian Oak")
- Strapazierfähig, pflegeleicht, rutschhemmend und fußwarm - ideal für seniorengerechtes Wohnen
- Großformatiges Feinsteinzeug in Bädern und Sanitärbereichen
- Rutschhemmende Mosaikfliesen (Rutschhemmklasse) in...
Preisinformation
2 Tiefgaragenstellplätze, Miete je: 180,00 EUR
Weitere Informationen
Sonstiges
Alle Angaben sind ohne Gewähr und basieren ausschließlich auf Informationen, die uns von unserem Auftraggeber übermittelt wurden. Wir übernehmen keine Gewähr für die Vollständigkeit, Richtigkeit und Aktualität dieser Angaben. Die in diesem Exposé enthaltenen Informationen und Anhänge sind ausschließlich für den...
Online-ID: 2phfe54
Referenznummer: 2112
Finde Angebote wie dieses
Hier geht es zu unserem Impressum, den Allgemeinen Geschäftsbedingungen, den Hinweisen zum Datenschutz und nutzungsbasierter Online-Werbung.