
BLUFINK Immobilien GmbH
Herr Claudius Weckerle
+49 ···
Nr. anzeigenPreise & Kosten
Provision für Käufer
3,57 inkl. MwSt.
Lage
Die Kantstraße 81 in Albstadt bietet eine erstklassige Wohnlage, die städtisches Leben mit der Nähe zur Natur vereint. Gelegen auf der Schwäbischen Alb, zeichnet sich Albstadt durch eine hohe Lebensqualität aus, die durch die umgebenden dichten Wälder und offenen Landschaften unterstrichen wird. Diese Stadt vereint die Ruhe...
Die Wohnung
Energie & Heizung
Warum sehe ich diese Anzeige? – Du siehst diese Anzeige basierend auf Ihrer Navigation auf unserer Website und den Suchkriterien, die du verwendet hast.
Energieausweistyp
Bedarfsausweis
Gebäudetyp
Wohngebäude
Wesentliche Energieträger
Holzpellets
Gültigkeit
29.10.2021 bis 28.10.2031
Effizienzklasse
C
Endenergiebedarf
19,90 kWh/(m²·a)
Weitere Energiedaten
Energieträger
Pellets
Heizungsart
Zentralheizung
Details
Objektbeschreibung
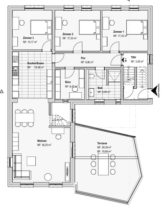
Willkommen in Ihrer neuen großzügigen Erdgeschosswohnung in der Kantstraße 81! Auf ca. 152 m² erwartet Sie ein modernes Wohnkonzept mit offen gestaltetem Küchen-, Wohn- und Essbereich (ca. 72 m²), drei geräumigen Schlafzimmern sowie einem hochwertig ausgestatteten Badezimmer. Eichenparkettböden, Fußbodenheizung und...
Ausstattung
Hochwertige energetische Sanierung (KfW 70 Effizienzhaus-Standard, Sanierung 2022)
Fußbodenheizung in allen Wohnungen
Elektrische Rollläden
Moderne Elektroinstallation mit Netzwerkanschlüssen und multimedialen Steckdosen
Gegensprechanlage
Hochwertige Sanitärausstattung:
Bodenebene...
Weitere Informationen
Sonstiges
Alle Angaben in diesem Exposé basieren auf den Informationen des Verkäufers. Eine Haftung für deren Richtigkeit und Vollständigkeit wird nicht übernommen.
Stichworte
Nutzfläche: 39,00 m², Anzahl der Schlafzimmer: 3, Anzahl der Badezimmer: 1, Anzahl Balkone: 1, Balkon-Terrassen-Fläche: 39,00 m²...
Anbieter der Immobilie
BLUFINK Immobilien GmbH
Hägerstraße 1, 88662 Überlingen
Online-ID: 2pheu57
Referenznummer: WE-1
Finde Angebote wie dieses
Hier geht es zu unserem Impressum, den Allgemeinen Geschäftsbedingungen, den Hinweisen zum Datenschutz und nutzungsbasierter Online-Werbung.