
Vereinigte Volksbanken eG
Frau Filiz Marghella-Bal
004 ···
Nr. anzeigenPreise & Kosten
Provision für Käufer
Bitte beachte, das Angebot kann bei Vertragsabschluss die Zahlung einer Provision beinhalten. Weitere Informationen erhältst Du vom Anbieter.
Lage
Das angebotene Grundstück befindet sich in dem charmanten Ort Gärtringen, der im Herzen der Region Baden-Württemberg liegt. Umgeben von malerischer Natur und dennoch in der Nähe urbaner Zentren, bietet diese Lage eine perfekte Balance zwischen Ruhe und lebendigem Stadtflair. Gärtringen ist bekannt für seine freundliche...
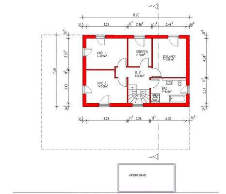
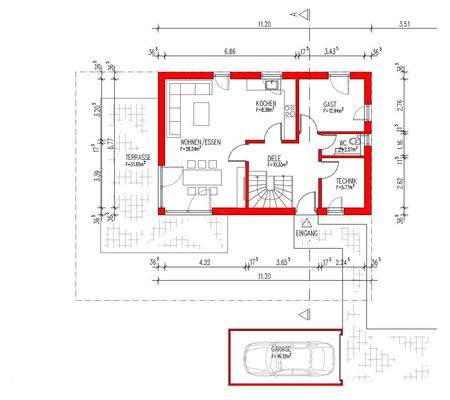
Das Haus
Kategorie
Einfamilienhaus
Baujahr
2026
Bezug
sofort
Energie & Heizung
Warum sehe ich diese Anzeige? – Du siehst diese Anzeige basierend auf Ihrer Navigation auf unserer Website und den Suchkriterien, die du verwendet hast.
Weitere Energiedaten
Heizungsart
Luft-/Wasser-Wärmepumpe, Zentralheizung
Details
Objektbeschreibung
Das Einfamilienhaus in Gärtringen bietet alles, was sich eine Familie für ihr neues Zuhause wünscht: eine durchdachte Architektur, helle Räume und ein großzügiges Grundstück mit viel Platz zum Leben und Wohlfühlen. Auf rund 450 m² Grundstücksfläche genießen Sie Privatsphäre, Gartenfläche für Kinder und entspannte Stunden im...
Ausstattung
Folgende Leistungen sind enthalten:
Baunebenkosten:
? Alle Baunebenkosten, um das Grundstück baureif zu erschließen und zu bebauen
? Der Hauspreis versteht sich inkl. Rohplanie des Gartengrundstücks, Anlegen der Terrasse, der Zuwegung zum Haus und eines Autoabstellplatzes
Planung und Baubegleitung...
Preisinformation
1 Stellplatz
Weitere Informationen
Sonstiges
o ohne Käuferprovision
o Grundstück ist im Preis für 427.500 Euro enthalten
o Carport oder Garage gegen Aufpreis möglich
o Eigene Wünsche sowie Eigenleistungen können berücksichtigt werden
Stichworte
Garage vorhanden, Anzahl der Schlafzimmer: 3, Anzahl der Badezimmer: 1, Anzahl der separaten...
Anbieter der Immobilie
Vereinigte Volksbanken eG
Friedrich-List-Platz 1, 71032 Böblingen
Online-ID: 2phc454
Referenznummer: 251238
Finde Angebote wie dieses
Hier geht es zu unserem Impressum, den Allgemeinen Geschäftsbedingungen, den Hinweisen zum Datenschutz und nutzungsbasierter Online-Werbung.