
Crozilla.com
Kaiser Immobilien d.o.o.
+38 ···
Nr. anzeigenPreise & Kosten
Provision für Käufer
Bitte beachte, das Angebot kann bei Vertragsabschluss die Zahlung einer Provision beinhalten. Weitere Informationen erhältst Du vom Anbieter.
Die Immobilie
Zu diesem Angebot wurden vom Anbieter keine weiteren Daten hinterlegt. Für weitere Informationen bitte den Anbieter kontaktieren.
Nach Informationen fragenDetails
Objektbeschreibung
Eine zeitlose Vision von Luxus im Herzen der Insel Krk
Kaiser Immobilien präsentiert ein exklusives Luxusvillenprojekt, das weit mehr ist als nur eine Sammlung von Immobilien zum Verkauf - es ist Ausdruck einer neu entfachten Leidenschaft für den Erhalt der zeitlosen Schönheit und Tradition der Insel...
Weitere Informationen
Stichworte
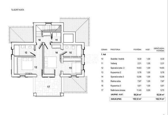
Anzahl der Schlafzimmer: 3, Anzahl der Badezimmer: 4, 1 Etagen
Anbieter der Immobilie
Crozilla.com
Nova cesta 60, 10000 ZAGREB
Online-ID: 2ph9g56
Referenznummer: 19639275_1
Finde Angebote wie dieses
Hier geht es zu unserem Impressum, den Allgemeinen Geschäftsbedingungen, den Hinweisen zum Datenschutz und nutzungsbasierter Online-Werbung.