
Sabine Zipf Immobilien
Frau Sabine Zipf
+49 ···
Nr. anzeigenPreise & Kosten
Kaution
5.025,00 €
Warum sehe ich diese Anzeige? – Du siehst diese Anzeige basierend auf Ihrer Navigation auf unserer Website und den Suchkriterien, die du verwendet hast.
Lage
Die unterfränkische Stadt Alzenau liegt ca. 30 km östlich der Mainmetropole Frankfurt/M. am Rande des Naturparks Spessart. Bekannt als die nordwestlichste Stadt Bayerns, liegt sie unmittelbar an der Grenze des Landkreises Aschaffenburg zum Land Hessen.
Die von uns offerierten Eigentumswohnungen befinden sich in...
Die Wohnung
Wohnungslage
Erdgeschoss
Bezug
ab sofort
Wohnanlage
Energie & Heizung
Warum sehe ich diese Anzeige? – Du siehst diese Anzeige basierend auf Ihrer Navigation auf unserer Website und den Suchkriterien, die du verwendet hast.
Energieausweistyp
Bedarfsausweis
Gebäudetyp
Wohngebäude
Wesentliche Energieträger
Strom
Gültigkeit
29.10.2024 bis 28.10.2034
Effizienzklasse
A+
Endenergiebedarf
26,00 kWh/(m²·a)
Weitere Energiedaten
Energieträger
Elektro
Details
Objektbeschreibung
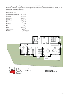
Am Stadtrand von Alzenau befindet sich diese zur Anmietung zur Verfügung stehende 4-Zimmer-Wohnung mit ca. 134 qm Wohnfläche im Erdgeschoss eines Mehrfamilien-Wohnhauses. Die Wohnung ist ausgestattet mit einem offenen Wohn- und Essbereich mit offener Küche (die abgebildete neue Einbauküche ist im Mietumfang enthalten) und...
Ausstattung
- 2 Stellplätze im Freien mit Vorbereitung zum Laden eines E-Autos
- stufenloser Zugang zum Haus und der Wohnung durch Fahrstuhl (seniorengerechtes Wohnen)
- Fliesen in Holz-Optik
- offener Wohn-/Essbereich mit offener Küche
- Einbauküche
- Fußbodenheizung
- Kunststofffenster mit 3-fach-Verglasung
-...
Preisinformation
2 Stellplätze, Miete je: 80,00 EUR
Weitere Informationen
Stichworte
Stellplatz vorhanden, Anzahl der Schlafzimmer: 3, Anzahl der Badezimmer: 2, Anzahl Terrassen: 1, Kellerfläche: 6,00 m², Stadtrandlage
Sonstiges/Wohnen: seniorengerechtes Wohnen
Anbieter der Immobilie
Sabine Zipf Immobilien
Im Ziegelhaus 13, 63571 Gelnhausen
Online-ID: 2ph7u57
Referenznummer: 6911#uHjLJD
Finde Angebote wie dieses
Hier geht es zu unserem Impressum, den Allgemeinen Geschäftsbedingungen, den Hinweisen zum Datenschutz und nutzungsbasierter Online-Werbung.