

SNR Immobilien UG (haftungsbeschränkt) & Co. KG
Herr/Frau Sebastian Nagel
038 ···
Nr. anzeigenPreise & Kosten
Provision für Käufer
2,38 %
2,38 % Käuferprovision inkl. MwSt., verdient und fällig mit Beurkundung des notariellen Kaufvertrages. Der Immobilienmakler hat einen provisionspflichtigen Maklervertrag mit dem Verkäufer in gleicher Höhe abgeschlossen.
Lage
Die Immobilie befindet sich in ruhiger und naturnaher Lage im beliebten Ostseebad Prerow - in unmittelbarer Nähe zum Darßer Wald und nur wenige Schritte vom Deich entfernt.
Die Umgebung zeichnet sich durch ihre besondere Kombination aus Natur, Ruhe und Strandnähe aus. Der feinsandige Nordstrand ist in etwa 10 bis 15...
Das Haus
Kategorie
Mehrfamilienhaus
Baujahr
2004
Bezug
nach Absprache
Energie & Heizung
Warum sehe ich diese Anzeige? – Du siehst diese Anzeige basierend auf Ihrer Navigation auf unserer Website und den Suchkriterien, die du verwendet hast.
Energieausweistyp
Verbrauchsausweis
Gebäudetyp
Wohngebäude
Wesentliche Energieträger
Gas
Gültigkeit
25.03.2026 bis 24.03.2036
Effizienzklasse
E
Endenergieverbrauch
137,03 kWh/(m²·a) - Warmwasser enthalten
Weitere Energiedaten
Energieträger
Gas
Heizungsart
offener Kamin
Details
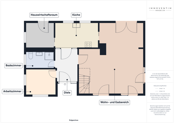
Objektbeschreibung
In einer der begehrtesten Lagen des Ostseebades Prerow, eingebettet zwischen Darßer Wald und Deich, präsentiert sich dieses gepflegte Zweifamilienhaus inklusive Ferienwohnung als vielseitig nutzbares Anwesen mit hoher Lebens- und Aufenthaltsqualität.
Das Haus wurde laufend instand gehalten und bietet auf insgesamt ca...
Ausstattung
Das Objekt befindet sich in einem gepflegten Zustand und wurde technisch in wesentlichen Bereichen modernisiert:
· Wohnfläche Haupthaus ca. 96,5 m² ; Wohnfläche FeWo ca. 30,7 m²
· Nutzung als Einfamilienhaus mit separater Ferienwohnung
· Gasheizung neu in 01/2026
· Fußbodenheizung im Erdgeschoss
·...
Preisinformation
2 Stellplätze
Weitere Informationen
Sonstiges
Das Objekt eignet sich hervorragend sowohl zur Eigennutzung als auch als Kombination aus Wohnen und Ferienvermietung. Die vorhandene Struktur ermöglicht eine flexible Nutzung - sei es als Mehrgenerationenhaus, Ferienimmobilie oder Kapitalanlage.
Die Immobilie wurde kontinuierlich gepflegt und modernisiert...
Anbieter der Immobilie
SNR Immobilien UG (haftungsbeschränkt) & Co. KG
Friedrich-Franz-Straße 8, 18119 Rostock

Online-ID: 2ph7q54
Referenznummer: 4909128
Finde Angebote wie dieses
Hier geht es zu unserem Impressum, den Allgemeinen Geschäftsbedingungen, den Hinweisen zum Datenschutz und nutzungsbasierter Online-Werbung.