
Immaxi Immobilien
Herr Thomas Hoffmann
034 ···
Nr. anzeigenPreise & Kosten
Kaution
3 Kaltmieten
Warum sehe ich diese Anzeige? – Du siehst diese Anzeige basierend auf Ihrer Navigation auf unserer Website und den Suchkriterien, die du verwendet hast.
Lage
Diese Mietwohnung befindet sich in attraktiver Lage in der Stadt Markkleeberg, einer beliebten Wohngegend im Süden von Leipzig. Markkleeberg zeichnet sich durch eine hohe Lebensqualität und eine hervorragende Infrastruktur aus. Die Adresse "Am Krähenfeld 2" liegt in einem ruhigen und gepflegten Wohnviertel, das überwiegend...
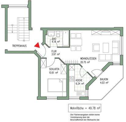
Die Wohnung
Wohnungslage
1. Geschoss
Bezug
01.07.2026
Wohnanlage
Energie & Heizung
Warum sehe ich diese Anzeige? – Du siehst diese Anzeige basierend auf Ihrer Navigation auf unserer Website und den Suchkriterien, die du verwendet hast.
Energieausweistyp
Verbrauchsausweis
Gebäudetyp
Wohngebäude
Baujahr laut Energieausweis
1995
Wesentliche Energieträger
GAS
Gültigkeit
bis 22.12.2027
Endenergieverbrauch
97,90 kWh/(m²·a)
Weitere Energiedaten
Energieträger
Gas
Heizungsart
Zentralheizung
Details
Objektbeschreibung
Markkleeberg: 2-Zimmer Mietwohnung mit Balkon am Krähenfeld 2
Zur Vermietung steht eine schicke 2-Raum Wohnung im 1. Obergeschoss. (kein Aufzug) Die Wohnung kann ab Juli 2026 angemietet werden. Das großzügige, lichtdurchflutete Wohnzimmer mit ca. 21 m² bietet ausreichend Platz für einen separaten Essbereich. Von hier...
Ausstattung
Frei ab voraussichtlich ab Juli 2026: 2-Zimmer Mietwohnung, Markkleeberg, 1. Obergeschoss, kein Aufzug, Laminatboden, Einbauküche, großer Balkon, Außenjalousien, Keller, Waschmaschinenplatz im Keller, Tiefgaragenplatz - Aufpreis € 60,00 pro Monat, Fahrradraum, Hausmeisterservice und vieles mehr.
Preisinformation
1 Garagenstellplatz, Miete: 60,00 EUR
Weitere Informationen
Sonstiges
Immaxi Immobilien - Die Immobilienmakler in Leipzig !
Haben wir Ihr Interesse geweckt? Vereinbaren Sie einen Besichtigungstermin!
TELEFON 0341 2122212
Unter dieser Nummer erreichen Sie unser kompetentes Maklerteam. Wir versuchen einen Termin nach Ihren Wünschen zu realisieren.
Unser...
Anbieter der Immobilie
Online-ID: 2ph5856
Referenznummer: 19567
Finde Angebote wie dieses
Hier geht es zu unserem Impressum, den Allgemeinen Geschäftsbedingungen, den Hinweisen zum Datenschutz und nutzungsbasierter Online-Werbung.