
Knabe Immobilien GmbH
Frau Linda Welk
004 ···
Nr. anzeigenPreise & Kosten
Kaution
1.509,74
Warum sehe ich diese Anzeige? – Du siehst diese Anzeige basierend auf Ihrer Navigation auf unserer Website und den Suchkriterien, die du verwendet hast.
Lage
+++ Melle-Buer
+++ Einkaufen, Ärzte, Apotheke im Ort
+++ Melle-Mitte ca. 10 Minuten mit dem PKW
+++ Autobahnauffahrt A30 ca. 8 Minuten
Details zur Lagebeschreibung, finden Sie auf unserer Website unter http://www.knabe-immobilien.de/immobilien/mieten/
für Sie zusammengestellt.
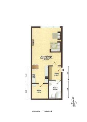
Die Wohnung
Wohnungslage
Erdgeschoss
Bezug
sofort
Wohnanlage
Energie & Heizung
Warum sehe ich diese Anzeige? – Du siehst diese Anzeige basierend auf Ihrer Navigation auf unserer Website und den Suchkriterien, die du verwendet hast.
Energieausweis: für diesen Gebäudetyp nicht notwendig
Weitere Energiedaten
Heizungsart
Fußbodenheizung, Luft-/Wasser-Wärmepumpe, Zentralheizung
Details
Objektbeschreibung
Dieses moderne, ebenerdige Zuhause bietet Singles im Erstbezug ein komfortables Wohnambiente, das den Alltag angenehm leicht macht.
Die Wohnung überzeugt mit einem offen gestaltetem, hellen Wohn- und Schlafraum. Große Fensterfronten mit elektrisch steuerbaren Jalousien schaffen eine Lichtatmosphäre ganz nach Ihrem...
Ausstattung
+++ Erstbezug, hochwertige Ausstattung
+++ moderne 1-Zimmerwohnung im Erdgeschoss
+++ Wohn- Schlafraum mit offener Küche
+++ Einbauküche inklusive
+++ Bad mit bodengleicher Dusche, WC, Waschtisch
+++ HWR mit Waschmaschinen Anschluss
+++ Moderne Beheizung über Wärmepumpe
+++ Fußbodenheizung und...
Weitere Informationen
Sonstiges
Eine Energieausweispflicht besteht nicht aufgrund § 80 (1) GEG, neu zu errichtende Gebäude. Energieausweis wird nach kompletter Fertigstellung beantragt.
Dem Mietvertrag wird eine Staffelmiete zugrunde liegen. Staffelerhöhung nach 3 Jahren um +40,00€.
Die Wohnung ist ideal geeignet für:
Single...
Anbieter der Immobilie
Online-ID: 2ph5554
Referenznummer: 5946_5
Finde Angebote wie dieses
Hier geht es zu unserem Impressum, den Allgemeinen Geschäftsbedingungen, den Hinweisen zum Datenschutz und nutzungsbasierter Online-Werbung.